Four Bays And Upwards with Upper Floors - WS00310
Also in: Oak Framed Complexes
This is a building we have previously constructed which you may want to use as a starting point for your design. All our buildings are designed and manufactured to your individual specifications.
Details
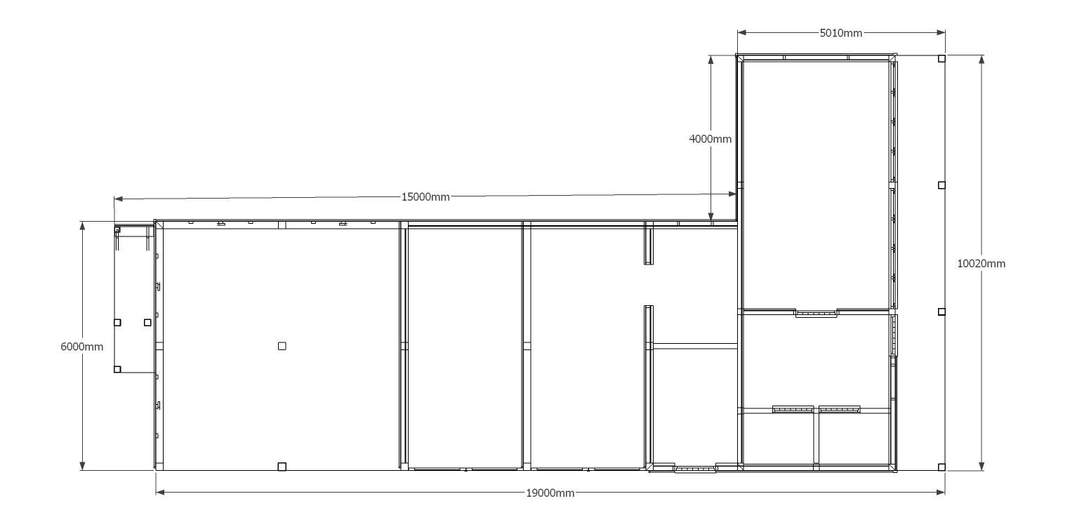
This is an ‘L’ shaped complex where one frame is garaging with a first floor and the other frame is a garden room. The main building has two open garage bays and two enclosed with garage doors. There is also a seperate workshop and store room at one end. The first floor is reached by an external oak staircase, it has four two light dormers and four rooflights on the opposite side.The garden room has a roof overhang / walkway along the front with the full height glazing set back. There is also toilets and a changing area which is used with the swimming pool that this building is next to.
Dimensions
| G/F Area (sq m) | 134 |
| F/F Area (sq m) | 56 |
| Total Area (sq m) | 190 |
| Length (m) | 19.1 |
| Depth (m) | 10 |
| Ridge Height (m) | 5.5 |
| Roof Pitch (deg) | 45 |
| Number of Bays | 8 |
| Location | Nottinghamshire |





