Back to Three Bay Oak Garages
Three Bay Oak Garages - WS00306
This is a building we have previously constructed which you may want to use as a starting point for your design. All our buildings are designed and manufactured to your individual specifications.
Details
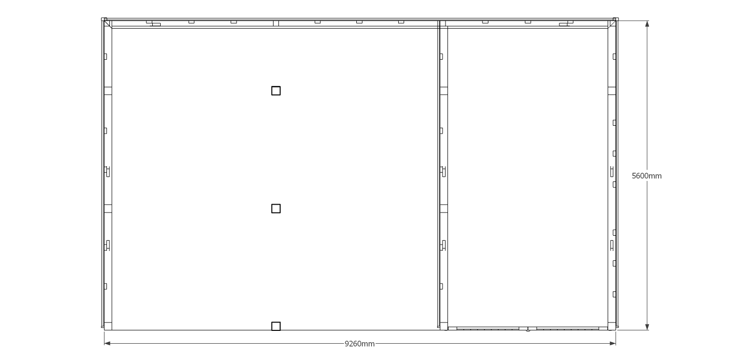
This three bay garage has two open parking spaces and one bay enclosed with garage doors. The roof has leaded gablets both ends and a catslide to the rear.
Dimensions
| G/F Area (sq m) | 51.86 |
| Total Area (sq m) | 51.86 |
| Length (m) | 9.26 |
| Depth (m) | 5.6 |
| Ridge Height (m) | 4.8 |
| Roof Pitch (deg) | 45 |
| Number of Bays | 3 |
| Location | West Sussex |



