Four Bays And Upwards with Upper Floors - WS00304
Also in: Oak Framed Complexes
This is a building we have previously constructed which you may want to use as a starting point for your design. All our buildings are designed and manufactured to your individual specifications.
Details
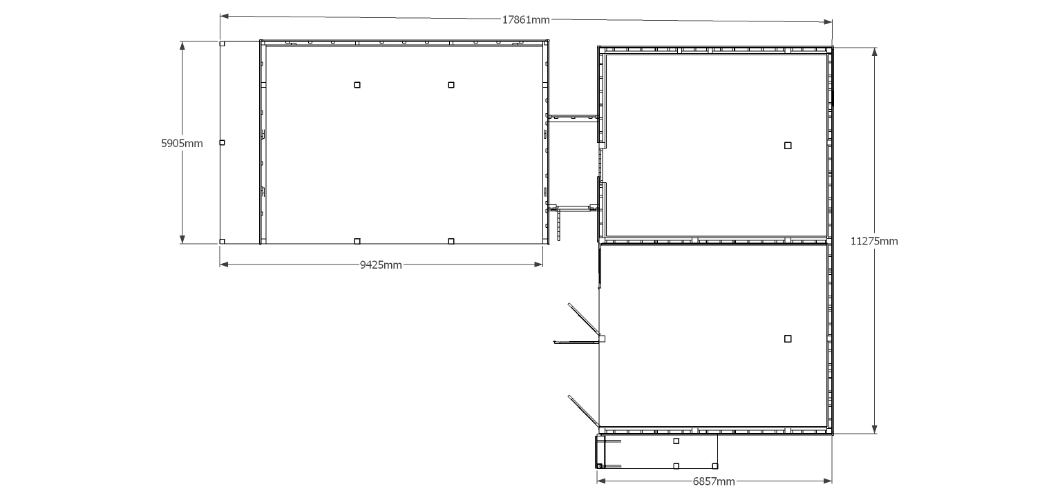
This oak framed complex comprises of a three bay open garage with a logstore on the left hand end connected to a four bay raised plate by a small link building. The ground floor of the four bay raised plate is split into two. One two bay section has garage doors to the front and is divided from the other two bays by a partition. The second two bays are used as a store / workshop and are accessed via a single door in the link building. The first floor is accessed via an external oak staircase on the right hand side and this area has four rooflights for added light and one acts as a means of escape. This building also has a clock tower sitting in the centre of the ridge of the four bay building.
Dimensions
| G/F Area (sq m) | 137.03 |
| F/F Area (sq m) | 40.59 |
| Total Area (sq m) | 177.62 |
| Length (m) | 17.86 |
| Depth (m) | 12.275 |
| Ridge Height (m) | 5.6 |
| Roof Pitch (deg) | 45 |
| Number of Bays | 7 |
| Location | Kent |
| Ridge Height (m) | Raised Plate |



