Back to Garden Rooms and Orangeries
Garden Rooms and Orangeries - WS00300
Also in: Oak Framed Extensions
Also in: Oak lean to
This is a building we have previously constructed which you may want to use as a starting point for your design. All our buildings are designed and manufactured to your individual specifications.
Details
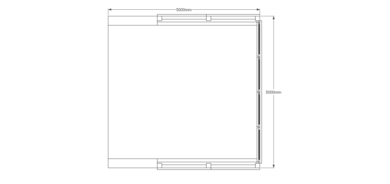
A 3 bay garden room extension where one bay is full height cavity brickwork. The front has full length glazed units with the centre two opening as doors. the side windows are sitting on low cavity walls. This building also has a glazed gable and 6 rooflights.
Dimensions
| G/F Area (sq m) | 25 |
| Total Area (sq m) | 25 |
| Length (m) | 5 |
| Depth (m) | 5 |
| Ridge Height (m) | 3.4 |
| Roof Pitch (deg) | 20 |
| Number of Bays | 3 |
| Location | Oxfordshire |




