Back to Three Bay Oak Garages
Three Bay Oak Garages - WS00294
This is a building we have previously constructed which you may want to use as a starting point for your design. All our buildings are designed and manufactured to your individual specifications.
Details
This oak framed garage sits on retaining walls on three side which are cut into a bank. The sides above the walls are left open so you just see the curved knee braces. The roof has a gablet at each end which is finished with lead sheet.
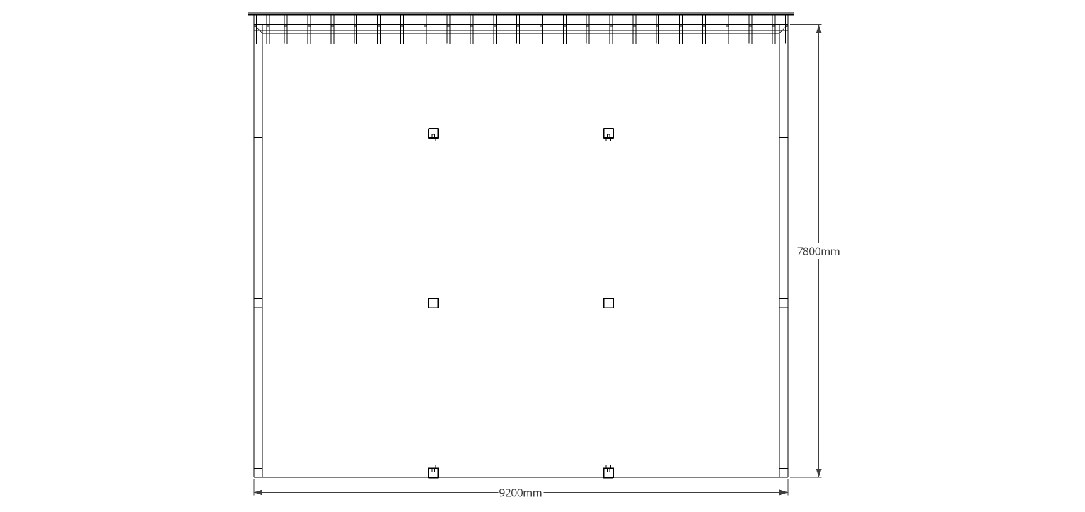
Dimensions
| G/F Area (sq m) | 71.76 |
| Total Area (sq m) | 71.76 |
| Length (m) | 9.2 |
| Depth (m) | 7.8 |
| Ridge Height (m) | 4.95 |
| Roof Pitch (deg) | 40 |
| Number of Bays | 3 |
| Location | Hampshire |



