Back to One Bay Oak Framed Garages
One Bay Oak Framed Garages - WS00292
This is a building we have previously constructed which you may want to use as a starting point for your design. All our buildings are designed and manufactured to your individual specifications.
Details
A single bay garage with gable ends and a log store to the left hand side.
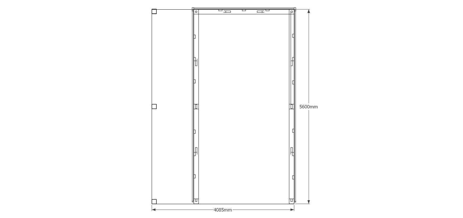
Dimensions
| G/F Area (sq m) | 22.85 |
| Total Area (sq m) | 22.85 |
| Length (m) | 4.08 |
| Depth (m) | 5.6 |
| Ridge Height (m) | 3.5 |
| Roof Pitch (deg) | 40 |
| Number of Bays | 1 |
| Location | Middlesex |



