Back to Three Bay Oak Garages with Upper Floors
Three Bay Oak Garages with Upper Floors - WS00287
This is a building we have previously constructed which you may want to use as a starting point for your design. All our buildings are designed and manufactured to your individual specifications.
Details
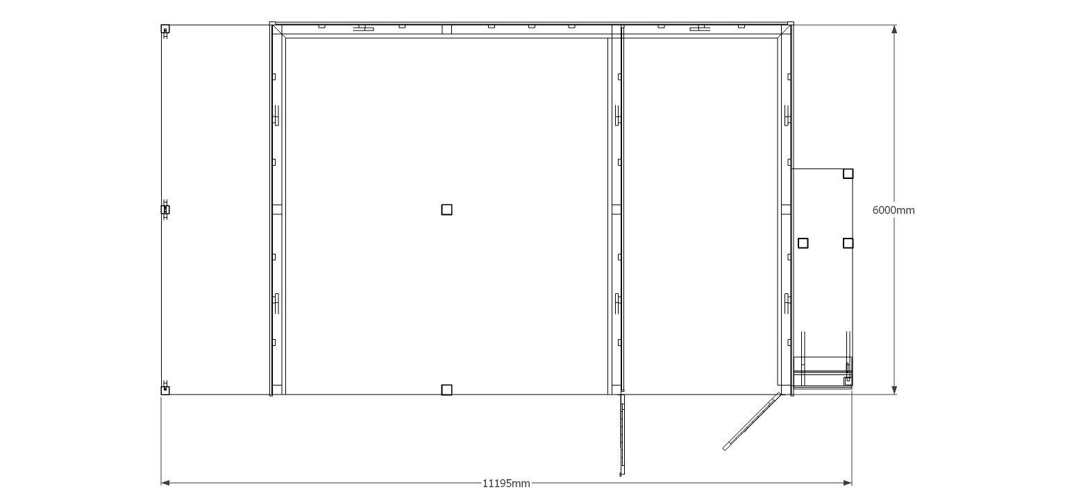
This oak framed three bay garage has one bay enclosed with a partition and pair of traditional side hung garage doors. There is a barn hip on the right and a gablet leading onto a catslide roof forming a logstore on the left. An oak external staircase takes you to the first floor which has a half glazed door and 3 Velux rooflights.
Dimensions
| G/F Area (sq m) | 61.2 |
| F/F Area (sq m) | 29.6 |
| Total Area (sq m) | 90.8 |
| Length (m) | 11.2 |
| Depth (m) | 6 |
| Ridge Height (m) | 6 |
| Roof Pitch (deg) | 50 |
| Number of Bays | 3 |
| Location | East Sussex |



