Back to Two Bay Oak Garages
Two Bay Oak Garages - WS00286
This is a building we have previously constructed which you may want to use as a starting point for your design. All our buildings are designed and manufactured to your individual specifications.
Details
A 2 bay open fronted garage with rear catslide to give added depth and keep ridge height down. It also has a low roof pitch with a slate covering.
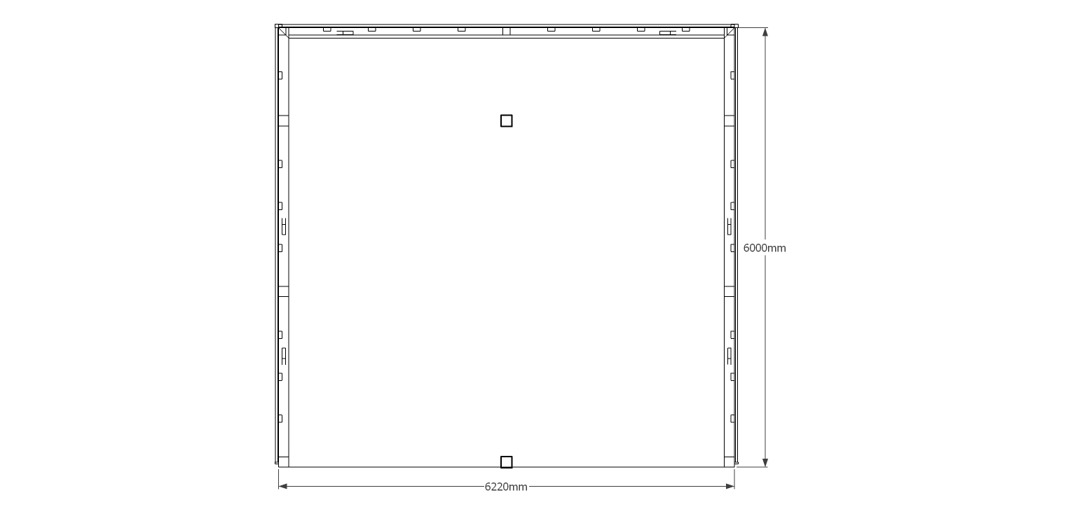
Dimensions
| G/F Area (sq m) | 37.32 |
| Total Area (sq m) | 37.32 |
| Length (m) | 6.22 |
| Depth (m) | 6 |
| Ridge Height (m) | 3.9 |
| Roof Pitch (deg) | 32 |
| Number of Bays | 2 |
| Location | Guernsey |



