Back to Two Bay Oak Garages
Two Bay Oak Garages - WS00285
This is a building we have previously constructed which you may want to use as a starting point for your design. All our buildings are designed and manufactured to your individual specifications.
Details
A two bay open fronted garage with gable ends and a log store at the rear.
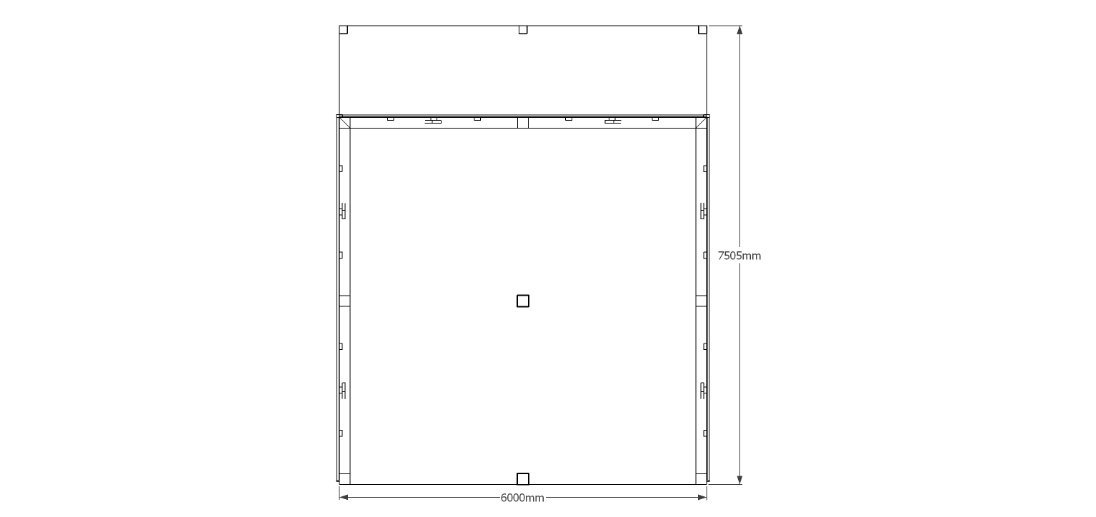
Dimensions
| G/F Area (sq m) | 45.03 |
| Total Area (sq m) | 45.03 |
| Length (m) | 6 |
| Depth (m) | 7.505 |
| Ridge Height (m) | 5.3 |
| Roof Pitch (deg) | 40 |
| Number of Bays | 2 |
| Location | Hampshire |




