Back to Three Bay Oak Garages
Three Bay Oak Garages - WS00282
This is a building we have previously constructed which you may want to use as a starting point for your design. All our buildings are designed and manufactured to your individual specifications.
Details
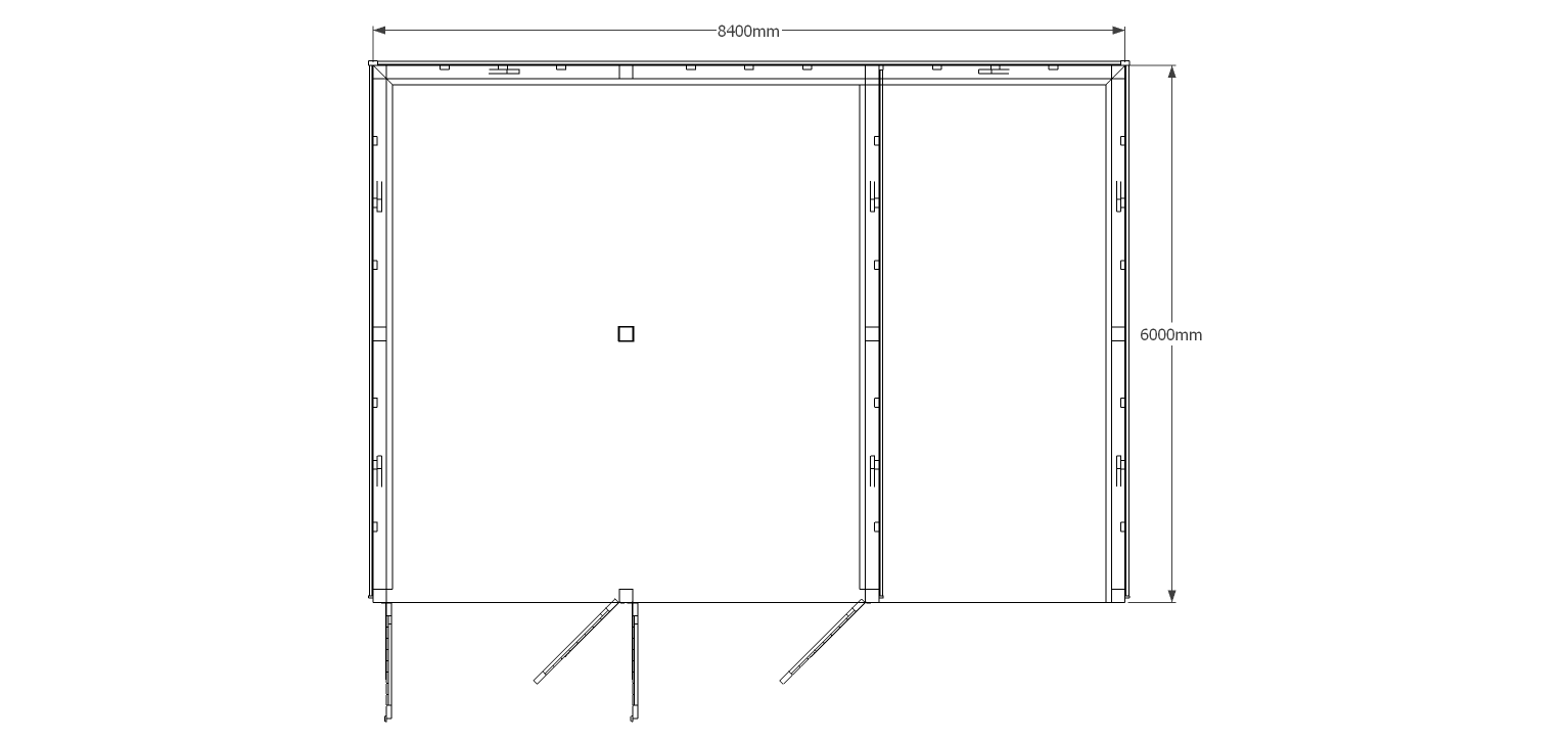
A 3 bay garage with gable ends divided with a front to rear partition to make 2 secure bays, using traditional side hung garage doors, and an open car bay. Although this was not built with a first floor one can easily added at a later date.
Dimensions
| G/F Area (sq m) | 50.4 |
| Total Area (sq m) | 50.4 |
| Length (m) | 8.4 |
| Depth (m) | 6 |
| Ridge Height (m) | 5.5 |
| Roof Pitch (deg) | 45 |
| Number of Bays | 3 |
| Location | Essex |



