Back to Three Bay Oak Garages with Upper Floors
Three Bay Oak Garages with Upper Floors - WS00280
This is a building we have previously constructed which you may want to use as a starting point for your design. All our buildings are designed and manufactured to your individual specifications.
Details
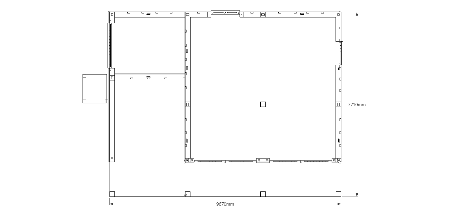
This oak framed two storey garage has three enclosed bays, one with a setback partition. The other bays are accessed by two sets of garage doors and there is an external oak staircase to the left. There is a single door to the right hand side and a single pane window on the first floor.
Dimensions
| G/F Area (sq m) | 74.56 |
| F/F Area (sq m) | 55 |
| Total Area (sq m) | 129.56 |
| Length (m) | 9.67 |
| Depth (m) | 7.71 |
| Ridge Height (m) | 6.4 |
| Roof Pitch (deg) | 45 |
| Number of Bays | 3 |
| Location | Hampshire |
| Ridge Height (m) | Two Storey |



