Back to Two Bay Oak Garages
Two Bay Oak Garages - WS00279
This is a building we have previously constructed which you may want to use as a starting point for your design. All our buildings are designed and manufactured to your individual specifications.
Details
This oak framed garage is formed of two enclosed bays. The bays are accessed by two sets of garage doors to the front of the building and have an enclosed logstore to the rear. There is also an open store to the right hand side.
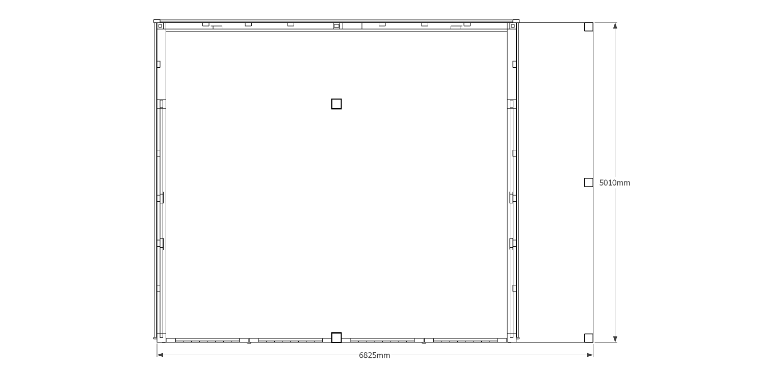
Dimensions
| G/F Area (sq m) | 34.12 |
| Total Area (sq m) | 34.12 |
| Length (m) | 6.825 |
| Depth (m) | 5 |
| Ridge Height (m) | 4 |
| Roof Pitch (deg) | 40 |
| Number of Bays | 2 |
| Location | Suffolk |



