Back to Home Leisure Buildings
Home Leisure Buildings - WS00273
This is a building we have previously constructed which you may want to use as a starting point for your design. All our buildings are designed and manufactured to your individual specifications.
Details
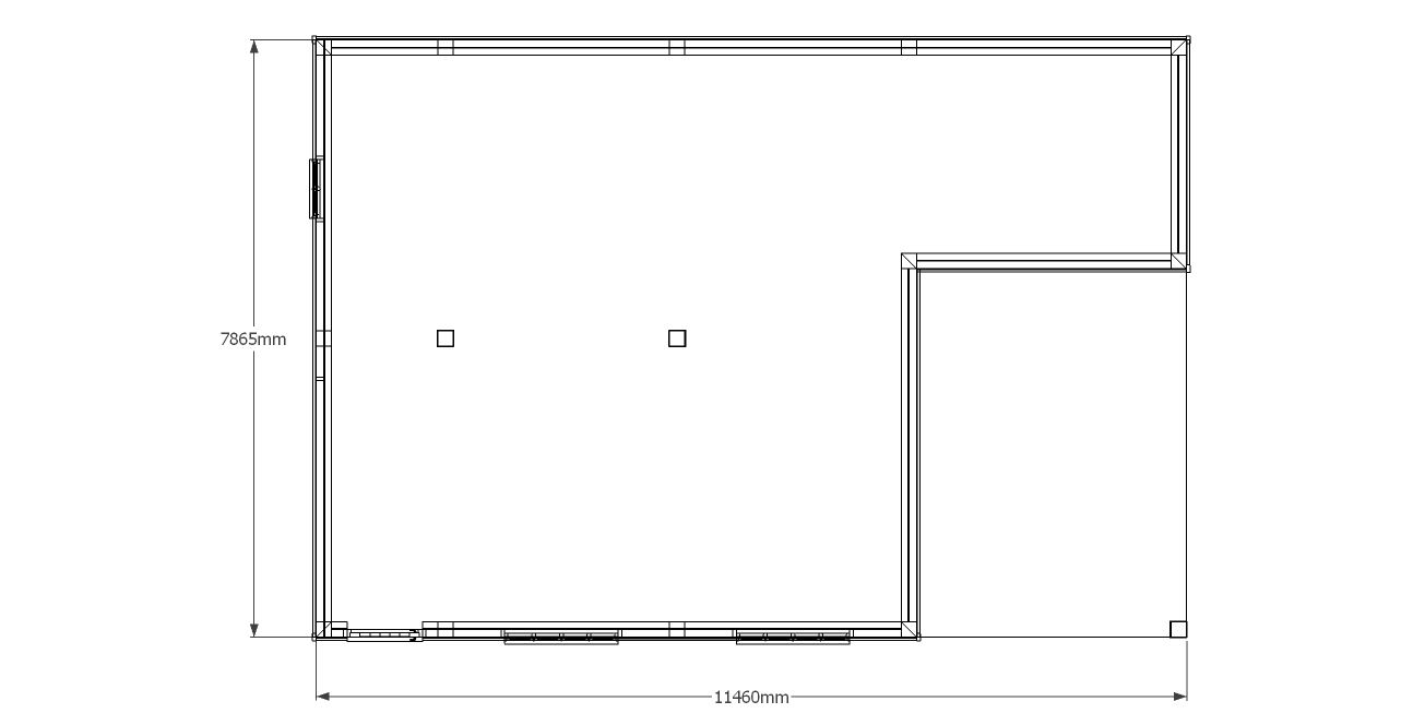
This oak framed garage has four bays, three are enclosed and one is half enclosed and half open. The small end bay is accessed by a half glazed single door and the other two bays have four pane windows to the front. The end bay has a set back partition making the bay open except for a small enclosed store to the rear. There are trimmings for two rooflights.
Dimensions
| G/F Area (sq m) | 90.05 |
| Total Area (sq m) | 90.05 |
| Length (m) | 11.45 |
| Depth (m) | 7.865 |
| Ridge Height (m) | 5.8 |
| Roof Pitch (deg) | 40 |
| Number of Bays | 4 |
| Location | Norfolk |



