Back to Oak Framed Complexes
Oak Framed Complexes - WS00271
This is a building we have previously constructed which you may want to use as a starting point for your design. All our buildings are designed and manufactured to your individual specifications.
Details
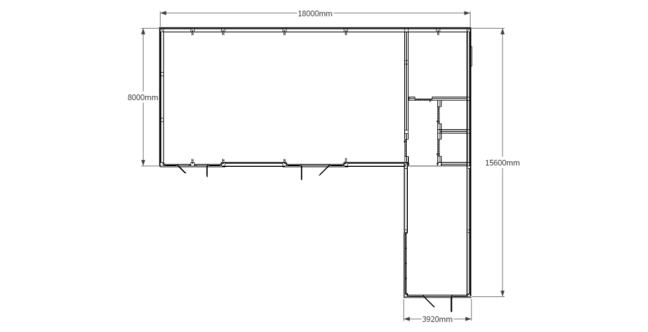
This oak framed complex is formed of three different frames. The first frame is formed of a three bay garden room with a glazed gable on the left side and a set of full length opening garden room windows. Attached to this frame is a three bay home leisure building with a set of opening garden room windows to the front. The third frame is a six bay home leisure building with full length glazing to the front of two bays and a glazed gable to the right end and full length opening garden room windows.
Dimensions
| G/F Area (sq m) | 172.88 |
| Total Area (sq m) | 172.88 |
| Length (m) | 18 |
| Depth (m) | 15.6 |
| Ridge Height (m) | 5.4 |
| Roof Pitch (deg) | 36 |
| Number of Bays | 8 |
| Location | Surrey |



