Back to Oak Framed Extensions
Oak Framed Extensions - WS00265
Also in: Oak lean to
This is a building we have previously constructed which you may want to use as a starting point for your design. All our buildings are designed and manufactured to your individual specifications.
Details
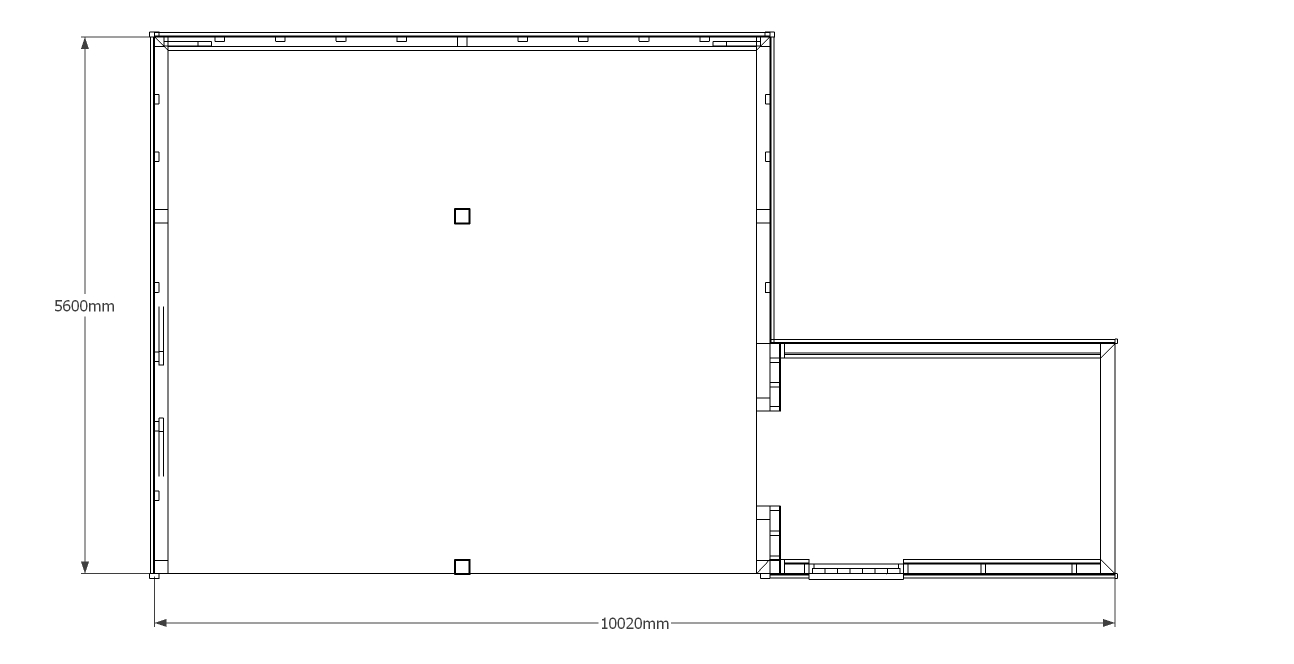
A 2 bay open garage with a link frame which attaches through to an existing building.
Dimensions
| G/F Area (sq m) | 44.59 |
| Total Area (sq m) | 44.59 |
| Length (m) | 10.02 |
| Depth (m) | 5.6 |
| Ridge Height (m) | 4 |
| Roof Pitch (deg) | 40 |
| Number of Bays | 3 |
| Location | Surrey |



