Back to Two Bay Oak Garages
Two Bay Oak Garages - WS00258
This is a building we have previously constructed which you may want to use as a starting point for your design. All our buildings are designed and manufactured to your individual specifications.
Details
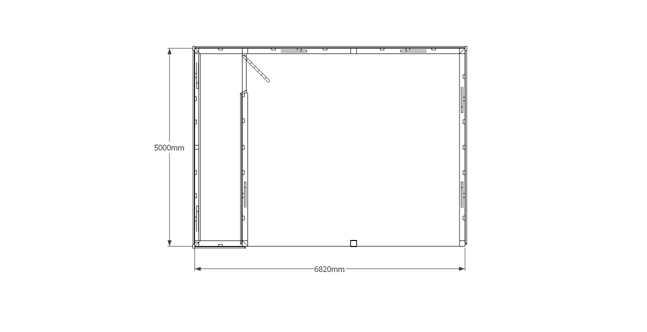
This oak framed garage has two open bays and an enclosed store to the left hand side.
Dimensions
| G/F Area (sq m) | 34.1 |
| Total Area (sq m) | 34.1 |
| Length (m) | 6.82 |
| Depth (m) | 5 |
| Ridge Height (m) | 4.5 |
| Roof Pitch (deg) | 40 |
| Number of Bays | 2 |
| Location | Norfolk |




