Back to Home Leisure Buildings
Home Leisure Buildings - WS00249
Also in: Oak Framed Complexes
This is a building we have previously constructed which you may want to use as a starting point for your design. All our buildings are designed and manufactured to your individual specifications.
Details
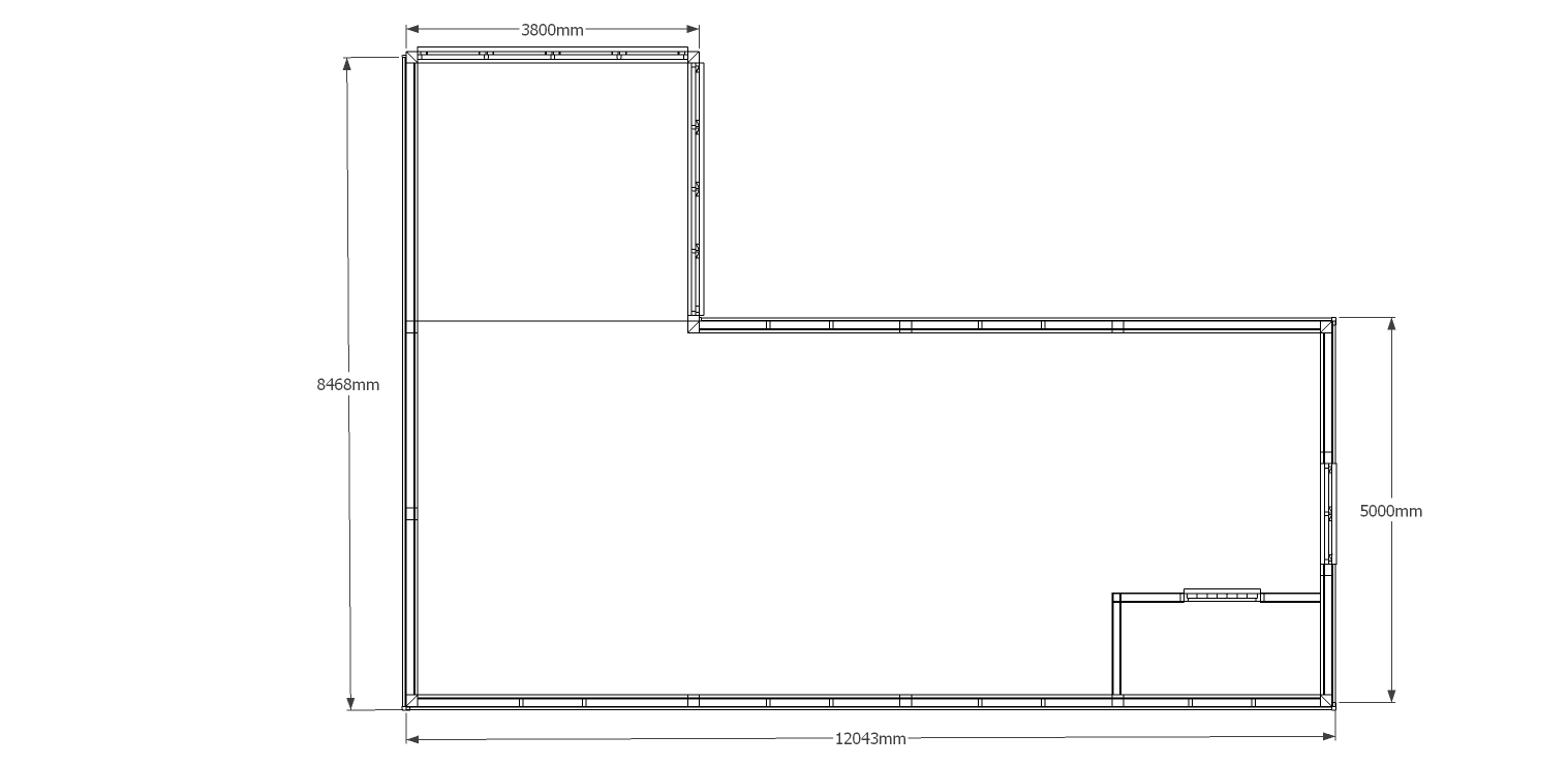
This oak framed complex is formed of two different frames. The first frame is a four bay home leisure building with four sets of two pane windows to the rear and a set of opening garden room windows to the right side. To the front there are two sets of two pane windows and attached is the second frame. The second frame is a garden room with the front and right sides fully glazed with full length windows and a glazed gable.
Dimensions
| G/F Area (sq m) | 73.3 |
| Total Area (sq m) | 73.3 |
| Length (m) | 12 |
| Depth (m) | 8.5 |
| Ridge Height (m) | 4.35 |
| Roof Pitch (deg) | 37 |
| Number of Bays | 5 |
| Location | Surrey |




