Oak Framed Complexes - WS00247
This is a building we have previously constructed which you may want to use as a starting point for your design. All our buildings are designed and manufactured to your individual specifications.
Details
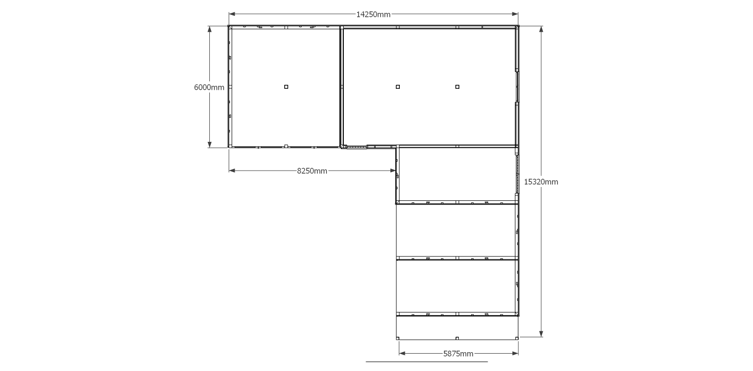
This oak framed two storey garage complex is formed of two different frames. The first frame is a five bay garage with two garage doors to the front and a half glazed single door. The other two bays are attached to the next frame and enclosed, with a set of garden room doors to the right side. To the first floor there are two dormers at the front with a two pane window in each. The next frame is a three bay garage with one enclosed bay and two open bays. On the first floor there is a dormer to the front and two to the rear, each with a two pane window. The enclosed bay has a pair of solid doors to the rear. To the right side there is an open store.
Dimensions
| G/F Area (sq m) | 140.33 |
| F/F Area (sq m) | 90.6 |
| Total Area (sq m) | 230.93 |
| Length (m) | 14.25 |
| Depth (m) | 15.32 |
| Ridge Height (m) | 5.45 |
| Roof Pitch (deg) | 45 |
| Number of Bays | 8 |
| Location | Essex |
| Ridge Height (m) | Two Storey |





