Back to Home Leisure Buildings
Home Leisure Buildings - WS00233
This is a building we have previously constructed which you may want to use as a starting point for your design. All our buildings are designed and manufactured to your individual specifications.
Details
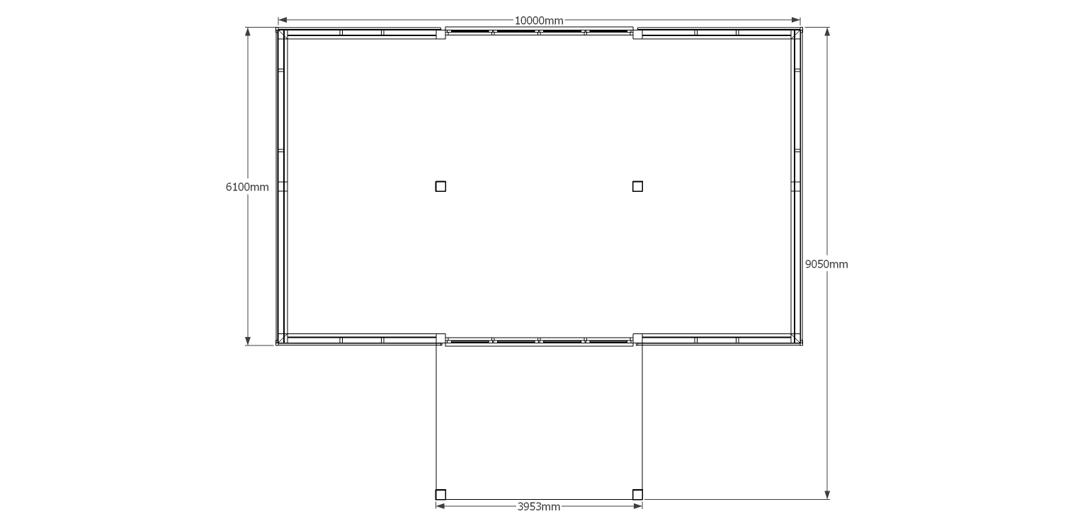
This oak framed home leisure building has three bays, with an extra open bay to the front to function as a porch. The middle bay has four full length garden room windows to the front and rear. The left and right bays have a two pane window to the front and rear and a four pane window to the side. There are trimmings for four rooflights.
Dimensions
| G/F Area (sq m) | 72.66 |
| F/F Area (sq m) | 41 |
| Total Area (sq m) | 113.66 |
| Length (m) | 10 |
| Depth (m) | 9.05 |
| Ridge Height (m) | 5.5 |
| Roof Pitch (deg) | 45 |
| Number of Bays | 4 |
| Location | West Midlands |




