Back to Home Leisure Buildings
Home Leisure Buildings - WS00232
This is a building we have previously constructed which you may want to use as a starting point for your design. All our buildings are designed and manufactured to your individual specifications.
Details
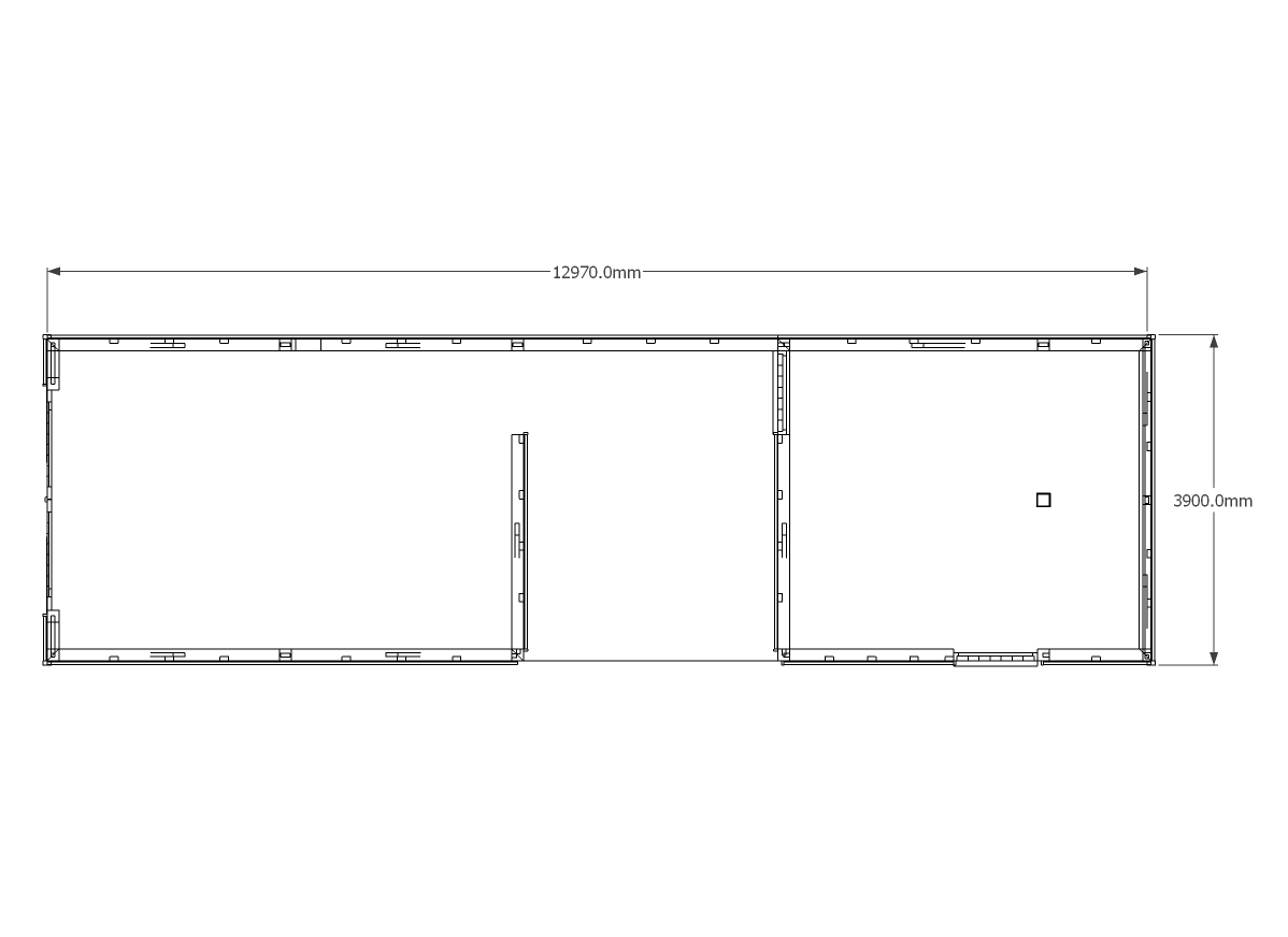
This oak framed garage has four bays, three enclosed and one open. Two of the enclosed bays are accessed by a set of garage doors to the left hand side. The third enclosed bay has a single door to the front and left side and a mullion window to the front. There is also an enclosed logstore to the side.
Dimensions
| G/F Area (sq m) | 50.58 |
| Total Area (sq m) | 50.58 |
| Length (m) | 12.97 |
| Depth (m) | 3.9 |
| Ridge Height (m) | 4 |
| Roof Pitch (deg) | 40 |
| Number of Bays | 4 |
| Location | East Sussex |



