Back to Three Bay Oak Garages
Three Bay Oak Garages - WS00230
This is a building we have previously constructed which you may want to use as a starting point for your design. All our buildings are designed and manufactured to your individual specifications.
Details
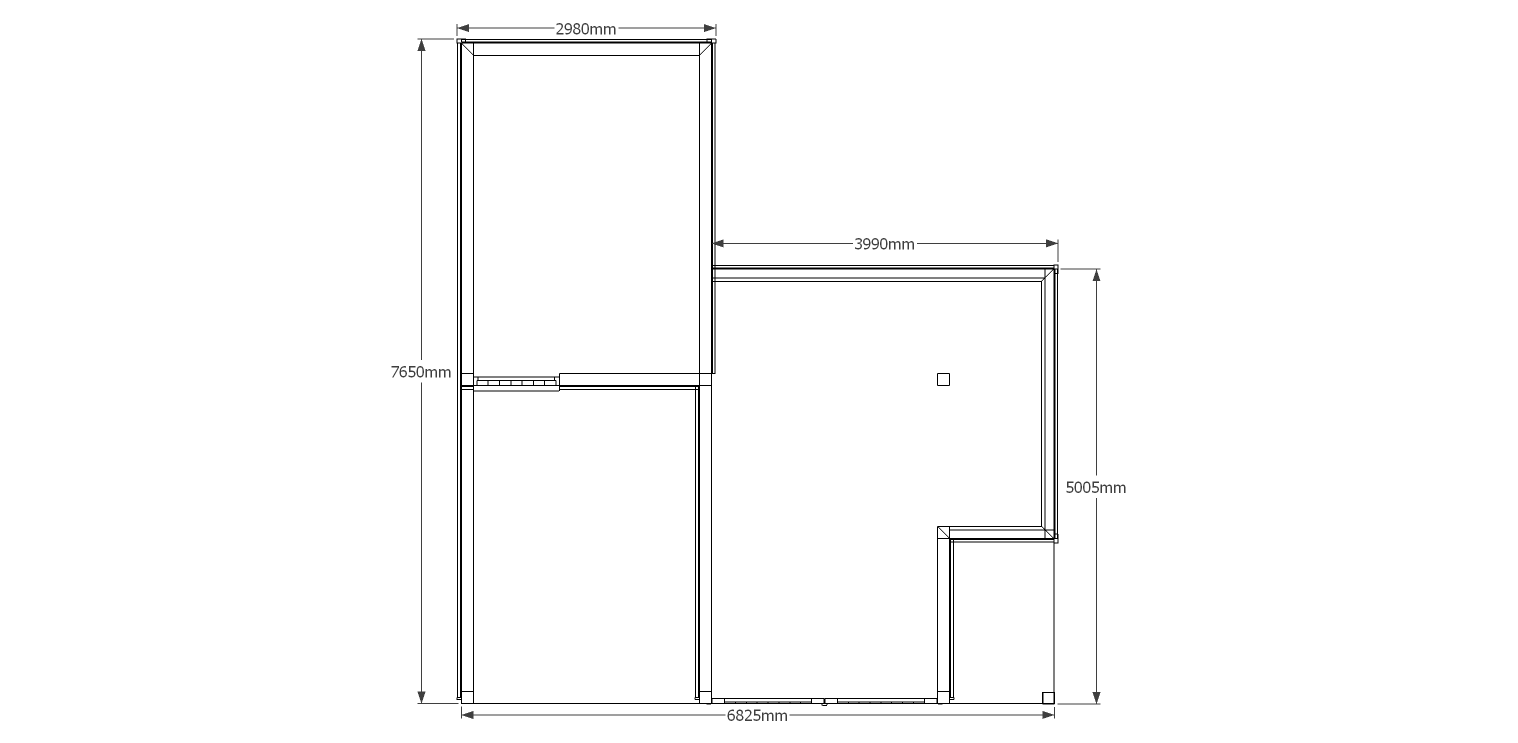
This oak framed garage is made up of two separate frames. The first is a two bay garage with one open bay and one enclosed. The enclosed bay is accessed by a pair of garage doors to the front. There is a logstore to the right hand side which is enclosed to the rear and open at the front. The second frame is another bay attached to the rear with access via a single door to the right hand side.
Dimensions
| G/F Area (sq m) | 41.61 |
| Total Area (sq m) | 41.61 |
| Length (m) | 6.825 |
| Depth (m) | 7.65 |
| Ridge Height (m) | 4 |
| Roof Pitch (deg) | 40 |
| Number of Bays | 3 |
| Location | East Sussex |



