Four Bays And Upwards with Upper Floors - WS00227
Also in: Oak Framed Complexes
Also in: Oak Framed Extensions
Also in: Oak lean to
This is a building we have previously constructed which you may want to use as a starting point for your design. All our buildings are designed and manufactured to your individual specifications.
Details
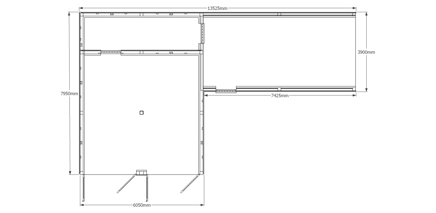
This two storey oak framed garage is formed of two seperate frames, the first is a three bay garage with the front enclosed and access via two sets of garage doors to the left hand side. The third bay is an enclosed smaller bay to join the two buildings together. The first floor has a set of full length opening garden room doors to the left side and trimming for three rooflights. Attached to this building is a two bay garage with enclosed bays and a single door to the front. There is a two pane window to the front and a three pane window. On the roof there are trimmings for two rooflights and the right side is left open for attaching to an existing building.
Dimensions
| G/F Area (sq m) | 75.71 |
| F/F Area (sq m) | 31.6 |
| Total Area (sq m) | 107.31 |
| Length (m) | 13.525 |
| Depth (m) | 7.95 |
| Ridge Height (m) | 6 |
| Roof Pitch (deg) | 50 |
| Number of Bays | 5 |
| Location | Warwickshire |
| Ridge Height (m) | Two Storey |




