Back to Home Leisure Buildings
Home Leisure Buildings - WS00225
Also in: Three Bay Oak Garages
This is a building we have previously constructed which you may want to use as a starting point for your design. All our buildings are designed and manufactured to your individual specifications.
Details
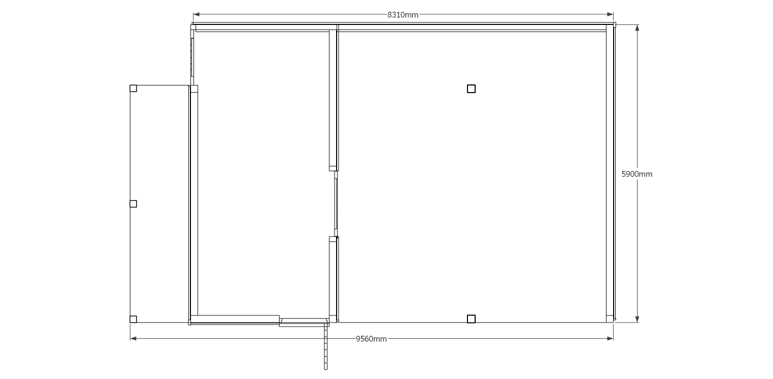
This oak framed garage has one enclosed bay and two open bays. The enclosed bay is accessed by a single door to the front and has a three pane window. There is also a single door to the left side. There is an open logstore to the left side of the building and an enclosed logstore to the rear.
Dimensions
| G/F Area (sq m) | 56.4 |
| Total Area (sq m) | 56.4 |
| Length (m) | 9.56 |
| Depth (m) | 5.9 |
| Ridge Height (m) | 4.25 |
| Roof Pitch (deg) | 38 |
| Number of Bays | 3 |
| Location | Kent |



