Back to Three Bay Oak Garages with Upper Floors
Three Bay Oak Garages with Upper Floors - WS00224
This is a building we have previously constructed which you may want to use as a starting point for your design. All our buildings are designed and manufactured to your individual specifications.
Details
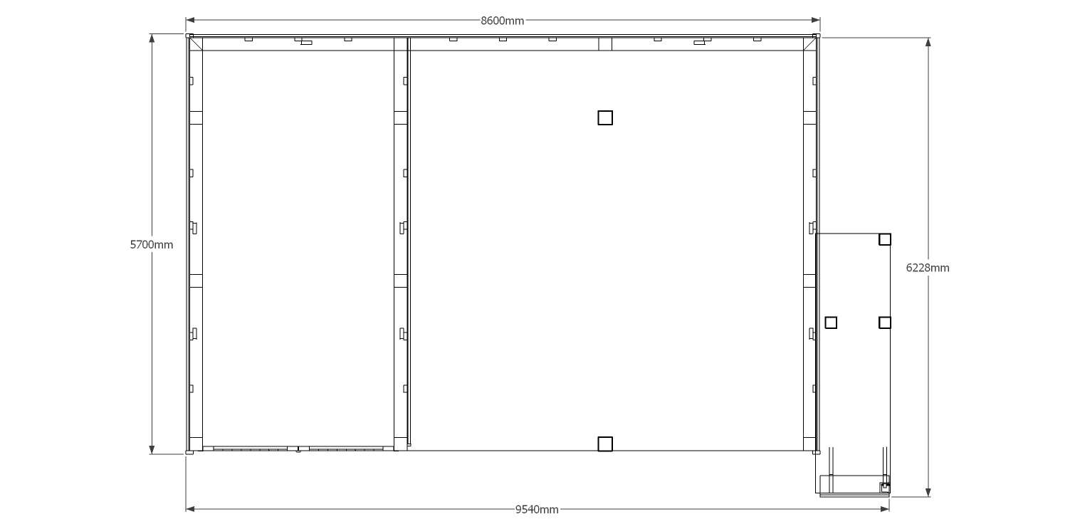
This two storey oak framed garage has three bays; one enclosed and two open. The enclosed bay is accessed by a set of garage doors to the front. The first floor is accessed via an external oak staircase and a half glazed door. The first floor also has trimmings for three rooflights.
Dimensions
| G/F Area (sq m) | 47.6 |
| F/F Area (sq m) | 30.6 |
| Total Area (sq m) | 78.2 |
| Length (m) | 9.5 |
| Depth (m) | 5.6 |
| Ridge Height (m) | 5.9 |
| Roof Pitch (deg) | 45 |
| Number of Bays | 3 |
| Location | East Sussex |
| Ridge Height (m) | Two Storey |



