Back to Three Bay Oak Garages with Upper Floors
Three Bay Oak Garages with Upper Floors - WS00222
This is a building we have previously constructed which you may want to use as a starting point for your design. All our buildings are designed and manufactured to your individual specifications.
Details
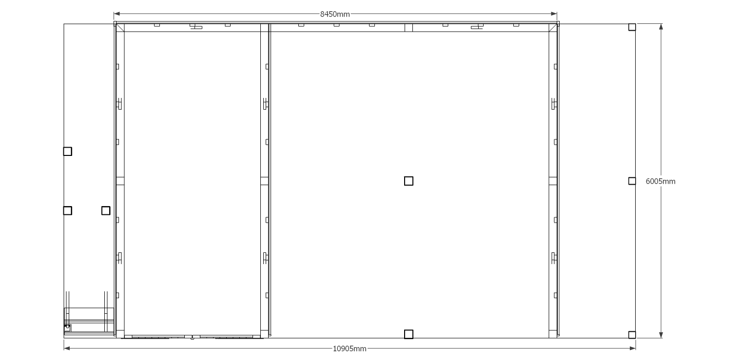
This two storey oak framed garage has three bays; two open and one enclosed. The enclosed bay is accessed by garage doors to the front. The first floor is accessed via an external oak staircase to the left hand side and a single door. There is also a dormer to the front with a four pane window. Attached to the right side is an open logstore.
Dimensions
| G/F Area (sq m) | 50.74 |
| F/F Area (sq m) | 33.84 |
| Total Area (sq m) | 84.58 |
| Length (m) | 10.905 |
| Depth (m) | 6.005 |
| Ridge Height (m) | 5.5 |
| Roof Pitch (deg) | 45 |
| Number of Bays | 3 |
| Location | Northamptonshire |
| Ridge Height (m) | Two Storey |



