Back to Four Bays And Upwards with Upper Floors
Four Bays And Upwards with Upper Floors - WS00219
This is a building we have previously constructed which you may want to use as a starting point for your design. All our buildings are designed and manufactured to your individual specifications.
Details
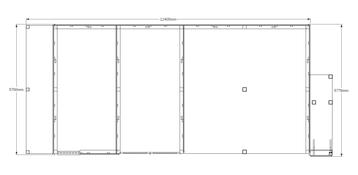
This two storey oak framed garage has four bays; two enclosed and two open. Access to the first floor is via the external oak staircase to the right hand side and a half glazed door. The first enclosed bay has a single door to the front and a two pane window, and is designed to be used for storage. The second enclosed bay has a set of garage doors. There is an open logstore to the left hand side of the building and trimming for three rooflights upstairs.
Dimensions
| G/F Area (sq m) | 74.89 |
| F/F Area (sq m) | 40.14 |
| Total Area (sq m) | 115.03 |
| Length (m) | 13.35 |
| Depth (m) | 5.61 |
| Ridge Height (m) | 5.3 |
| Roof Pitch (deg) | 45 |
| Number of Bays | 4 |
| Location | Jersey |
| Ridge Height (m) | Two Storey |




