Oak Framed Houses - WS00218
This is a building we have previously constructed which you may want to use as a starting point for your design. All our buildings are designed and manufactured to your individual specifications.
Details
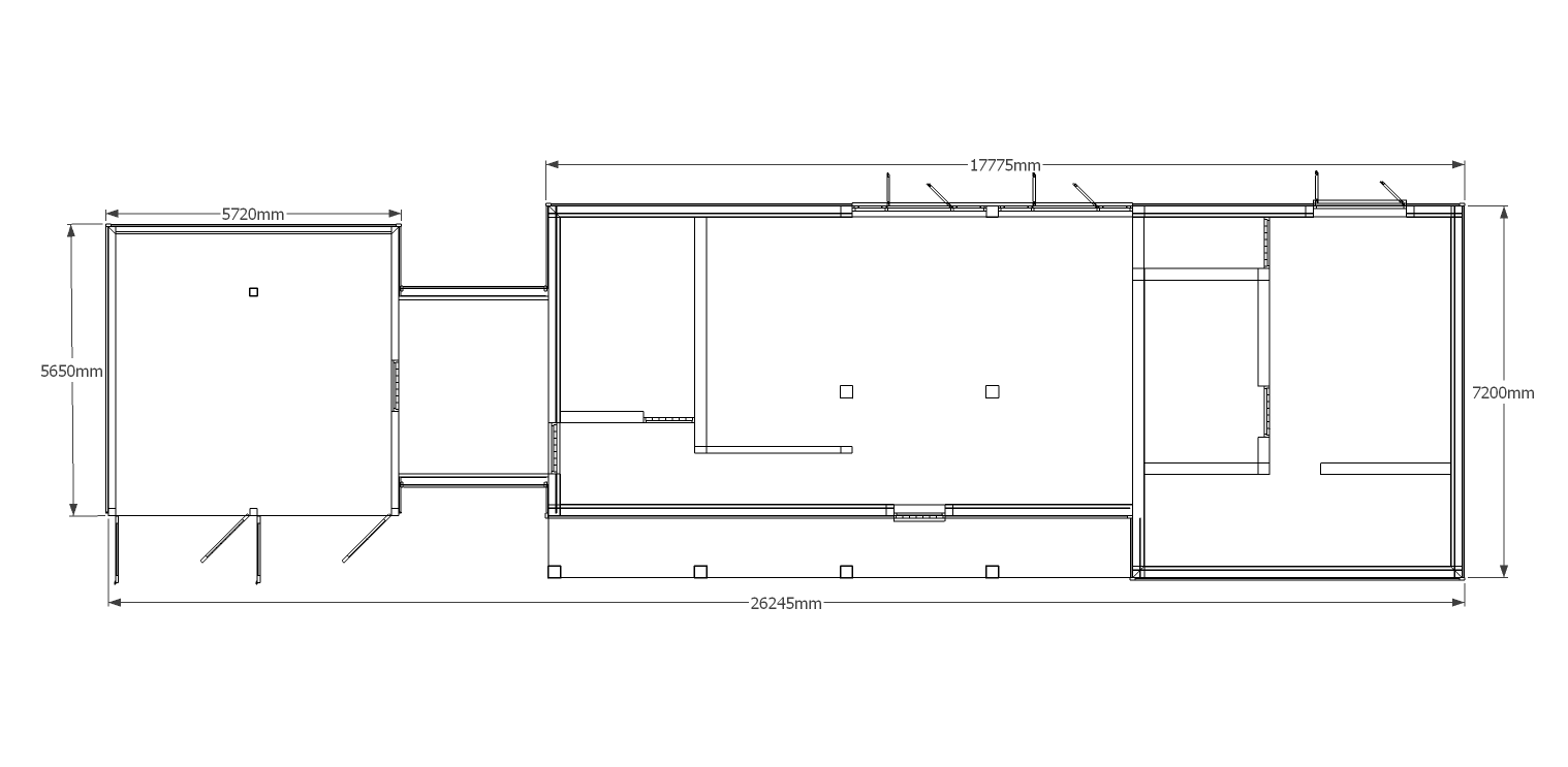
This oak framed house is comprised of three different frames; one is a two bay garage, the other is a link building that connects to the main house. The garage has two enclosed bays accessed via standard garage doors and also has an enclosed logstore to the rear. The link building has a single door to the left and right sides and a three pane window front and rear. The house itself is formed of six bays, with a set back partition to the front walls of four bays, accessed via a half glazed door. To the rear of the building there are three sets of full length opening garden room windows, as well as a four pane window and a two pane window.
Dimensions
| G/F Area (sq m) | 174.17 |
| Total Area (sq m) | 174.17 |
| Length (m) | 26.245 |
| Depth (m) | 7.2 |
| Ridge Height (m) | 6.2 |
| Roof Pitch (deg) | 45 |
| Number of Bays | 9 |
| Location | Kent |





