Back to Oak Framed Extensions
Oak Framed Extensions - WS00215
Also in: Oak lean to
This is a building we have previously constructed which you may want to use as a starting point for your design. All our buildings are designed and manufactured to your individual specifications.
Details
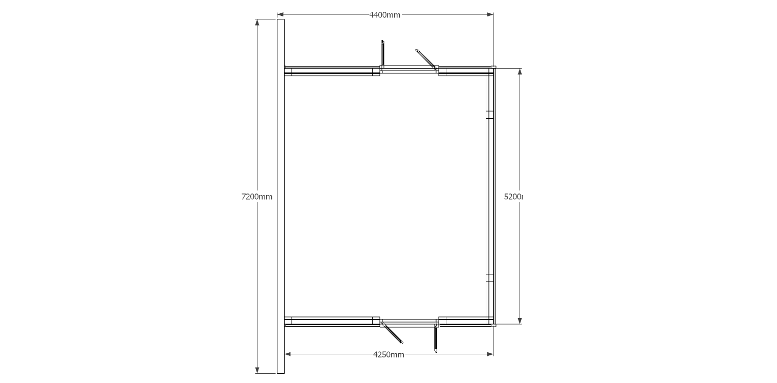
This oak framed home leisure building is designed to be attached to an existing building on the left hand side. The front, right and rear sides of the building all have single pane square windows the entire length of the building, with a pair of opening garden room windows to the front and rear.
Dimensions
| G/F Area (sq m) | 22.1 |
| Total Area (sq m) | 22.1 |
| Length (m) | 4.25 |
| Depth (m) | 5.2 |
| Ridge Height (m) | 4.8 |
| Roof Pitch (deg) | 40 |
| Number of Bays | 2 |
| Location | Cambridgeshire |




