Four Bays And Upwards with Upper Floors - WS00206
Also in: Oak Framed Complexes
This is a building we have previously constructed which you may want to use as a starting point for your design. All our buildings are designed and manufactured to your individual specifications.
Details
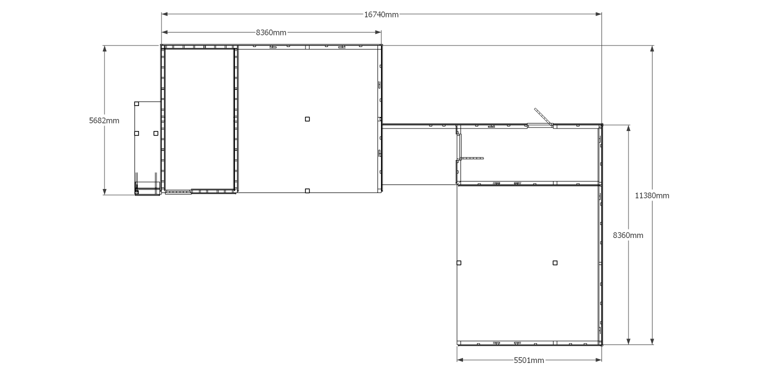
This oak framed complex is formed of three different buildings; a two storey three bay garage, a small link building, and another three bay garage. The first garage is a two storey building with access via a set of external oak steps to the left. It has three bays, one enclosed and two open. The enclosed bay is accessed by a single door to the front and also has a two pane window. On the first floor there are two dormers, each with a two pane window. The link building is open to the front. The second garage has three bays, one enclosed which attaches to the link building and also has a single door to the left hand side. The other two bays are open and have an enclosed store to the rear.
Dimensions
| G/F Area (sq m) | 99.36 |
| F/F Area (sq m) | 30.1 |
| Total Area (sq m) | 129.46 |
| Length (m) | 17.75 |
| Depth (m) | 11.38 |
| Ridge Height (m) | 5.3 |
| Roof Pitch (deg) | 45 |
| Number of Bays | 7 |
| Location | Hampshire |
| Ridge Height (m) | Two Storey |



