Oak Framed Complexes - WS00204
This is a building we have previously constructed which you may want to use as a starting point for your design. All our buildings are designed and manufactured to your individual specifications.
Details
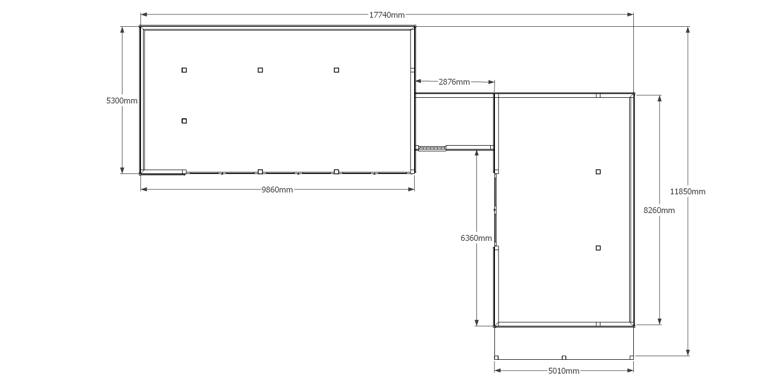
This oak framed complex is formed of a three bay garage, a small link building and another three bay garage. The first garage has three enclosed bays, all accessed by sets of garage doors to the front, and has an enclosed logstore to the left side and to the rear. The link building is one bay accessed by a single door to the front and has a mullion window. The other garage has one bay to be used for storage and the other two bays are accessed by a single set of garage doors to the front. There is also an open logstore to the right hand side.
Dimensions
| G/F Area (sq m) | 105.32 |
| Total Area (sq m) | 105.32 |
| Length (m) | 17.74 |
| Depth (m) | 11.85 |
| Ridge Height (m) | 4 |
| Roof Pitch (deg) | 40 |
| Number of Bays | 7 |
| Location | Kent |




