Back to Oak Framed Complexes
Oak Framed Complexes - WS00200
Also in: Oak Framed Extensions
Also in: Oak lean to
This is a building we have previously constructed which you may want to use as a starting point for your design. All our buildings are designed and manufactured to your individual specifications.
Details
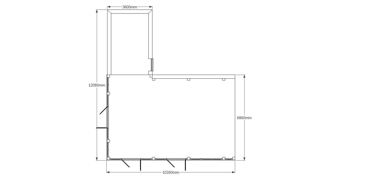
This oak framed home leisure building is formed of two frames and is designed to be attached to an existing building on the right hand side. The home leisure building has three bays, all fully glazed to the front and left side, with three sets of opening full length garden room windows. To the rear there is a two bay store building, with a single door to the front and two sets of three pane windows to the rear.
Dimensions
| G/F Area (sq m) | 89.2 |
| Total Area (sq m) | 89.2 |
| Length (m) | 10.26 |
| Depth (m) | 12.08 |
| Ridge Height (m) | 5.35 |
| Roof Pitch (deg) | 40 |
| Number of Bays | 4 |
| Location | Buckinghamshire |




