Back to Two Bay Oak Garages with Upper Floors
Two Bay Oak Garages with Upper Floors - WS00196
This is a building we have previously constructed which you may want to use as a starting point for your design. All our buildings are designed and manufactured to your individual specifications.
Details
A 2 bay oak framed garage with open fronted bays and an upper floor on a raised plate to give extra head room upstairs.The upper floor is accessed via an external oak staircase and has 2 dormer windows to the front of the building and barn hip roof ends.
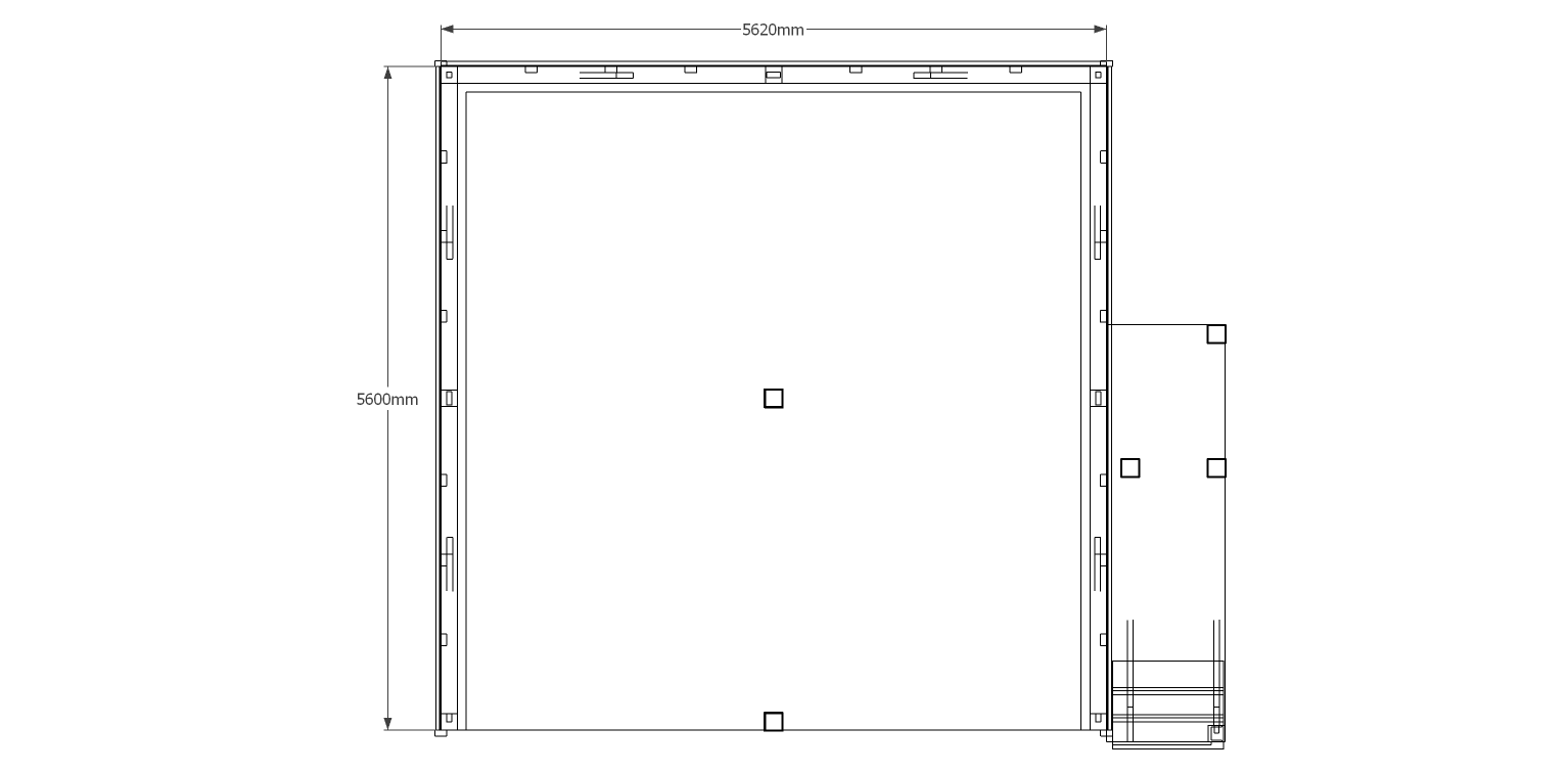
Dimensions
| G/F Area (sq m) | 31.47 |
| F/F Area (sq m) | 20.23 |
| Total Area (sq m) | 51.7 |
| Length (m) | 6.62 |
| Depth (m) | 5.6 |
| Ridge Height (m) | 5.5 |
| Roof Pitch (deg) | 45 |
| Number of Bays | 2 |
| Location | Surrey |
| Ridge Height (m) | Raised Plate |




