Back to Three Bay Oak Garages with Upper Floors
Three Bay Oak Garages with Upper Floors - WS00194
This is a building we have previously constructed which you may want to use as a starting point for your design. All our buildings are designed and manufactured to your individual specifications.
Details
This oak framed two storey garage has three bays, two enclosed and one open. The enclosed bays have a set of garage doors to the front. The first floor is accessed by an external oak staircase on the left hand side and a single solid door. The building has three dormers to the front; each with a two pane window.
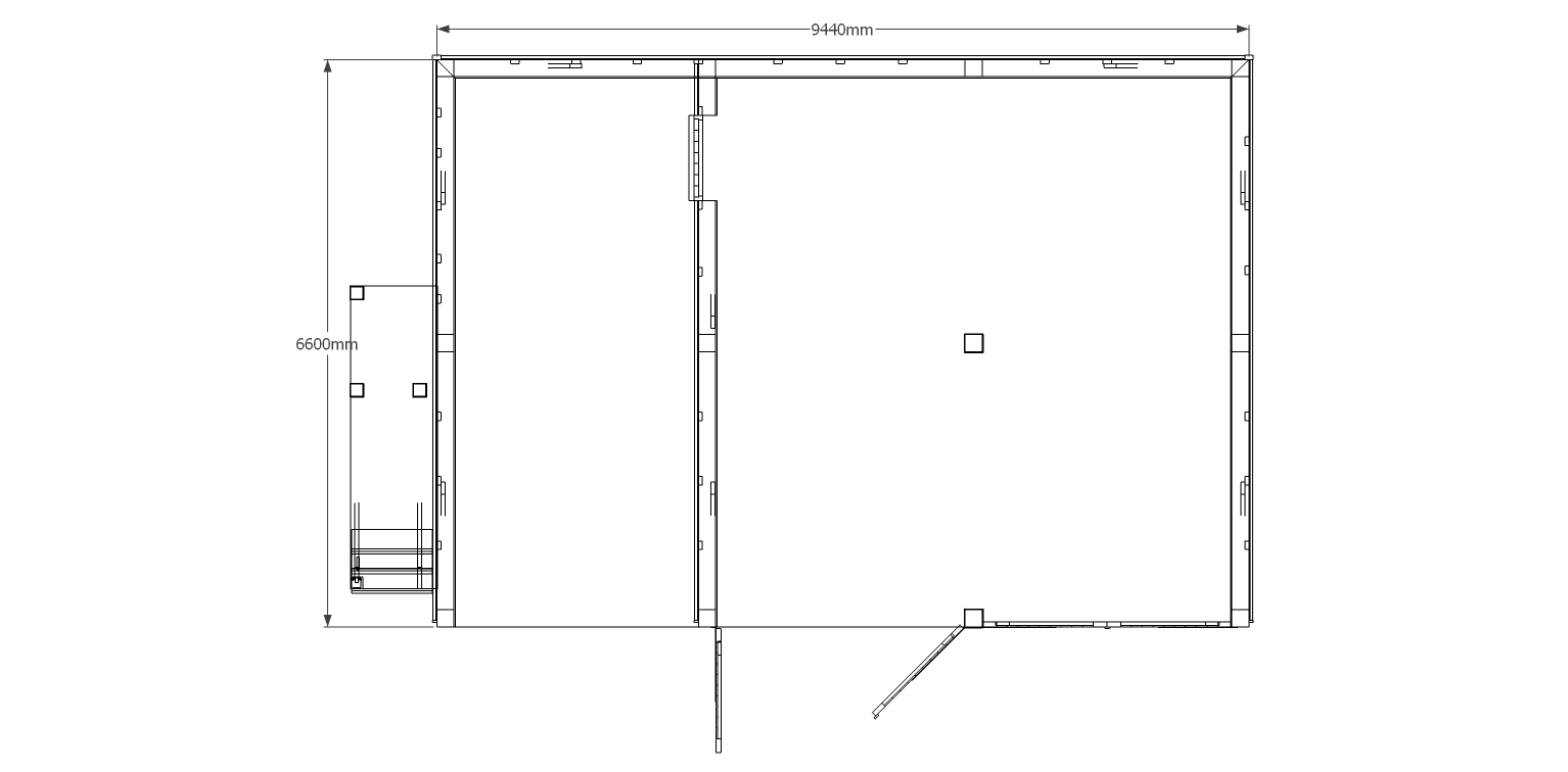
Dimensions
| G/F Area (sq m) | 62.3 |
| F/F Area (sq m) | 43.42 |
| Total Area (sq m) | 105.72 |
| Length (m) | 10.44 |
| Depth (m) | 6.6 |
| Ridge Height (m) | 5.8 |
| Roof Pitch (deg) | 45 |
| Number of Bays | 3 |
| Location | Worcestershire |
| Ridge Height (m) | Two Storey |




