Back to Three Bay Oak Garages with Upper Floors
Three Bay Oak Garages with Upper Floors - WS00193
This is a building we have previously constructed which you may want to use as a starting point for your design. All our buildings are designed and manufactured to your individual specifications.
Details
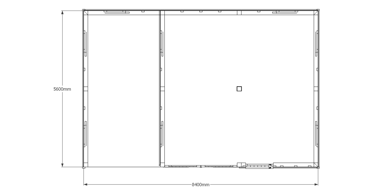
This oak framed garage has three bays; two are enclosed and one is open. The first enclosed bay has a set of garage doors to the front and the other enclosed bay has a single door and a mullion window, designed to be used as a store or a workshop. The first floor is accessed via a hatch in the store and has a three pane window to the left side as well as trimming for three rooflights.
Dimensions
| G/F Area (sq m) | 47.04 |
| F/F Area (sq m) | 30.25 |
| Total Area (sq m) | 77.29 |
| Length (m) | 8.4 |
| Depth (m) | 5.6 |
| Ridge Height (m) | 5.5 |
| Roof Pitch (deg) | 45 |
| Number of Bays | 3 |
| Location | Kent |



