Oak Framed Complexes - WS00191
This is a building we have previously constructed which you may want to use as a starting point for your design. All our buildings are designed and manufactured to your individual specifications.
Details
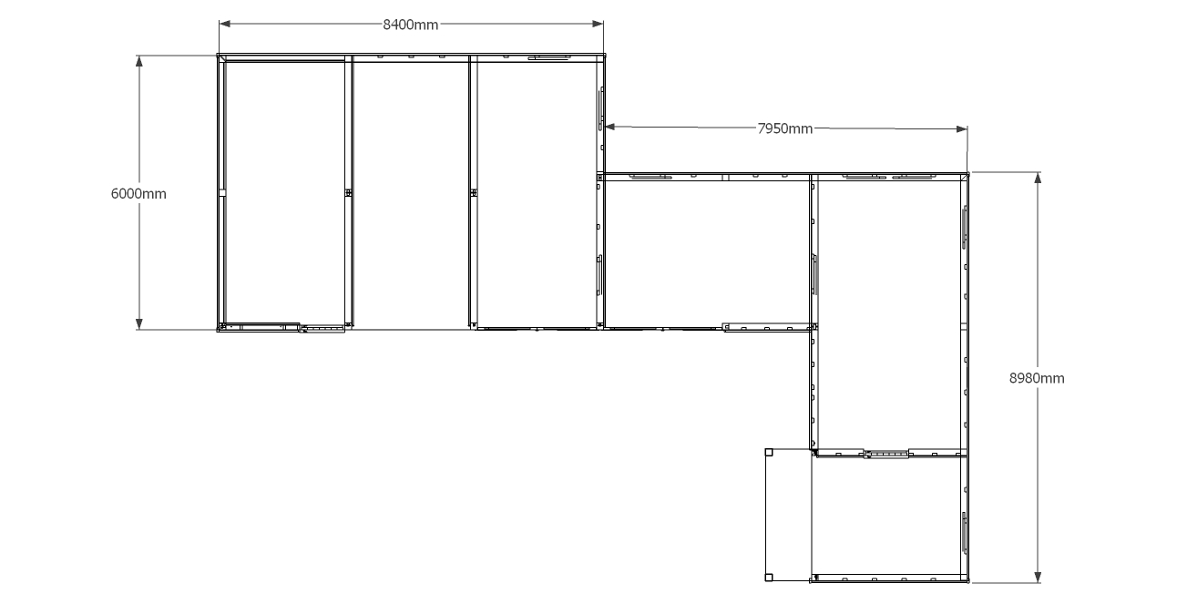
This oak framed complex is comprised of a three bay garage, a two bay link building, and a three bay store. The garage has two enclosed bays, with the left accessed via a single door to the front, and with a mullion window. This is bay is designed to be used as a workshop. The next bay is open to the front and the right bay has a set of garage doors to the front. Upstairs on the first floor there is a dormer with a three pane window. The link building has two bays, with a set of garage doors to the front and a mullion window. The three bay store has two mullion windows to the front and the end bay is open to the front, with an open barn entrance to the front, with a clock tower on the roof.
Dimensions
| G/F Area (sq m) | 96.4 |
| F/F Area (sq m) | 33.6 |
| Total Area (sq m) | 130 |
| Length (m) | 16.35 |
| Depth (m) | 11.58 |
| Ridge Height (m) | 5.45 |
| Roof Pitch (deg) | 45 |
| Number of Bays | 8 |
| Location | East Sussex |



