Back to Two Bay Oak Garages
Two Bay Oak Garages - WS00186
This is a building we have previously constructed which you may want to use as a starting point for your design. All our buildings are designed and manufactured to your individual specifications.
Details
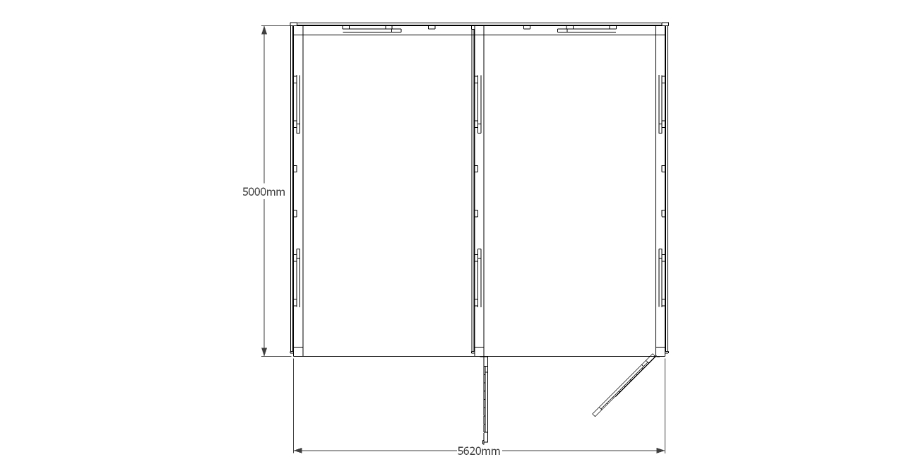
This oak framed garage has two bays; one is open and the other is enclosed. The enclosed bay is accessed via a set of garage doors to the front of the building.
Dimensions
| G/F Area (sq m) | 28.1 |
| Total Area (sq m) | 28.1 |
| Length (m) | 5.62 |
| Depth (m) | 5 |
| Ridge Height (m) | 4.5 |
| Roof Pitch (deg) | 40 |
| Number of Bays | 2 |
| Location | Cambridgeshire |



