Back to Four Bays And Upwards with Upper Floors
Four Bays And Upwards with Upper Floors - WS00183
This is a building we have previously constructed which you may want to use as a starting point for your design. All our buildings are designed and manufactured to your individual specifications.
Details
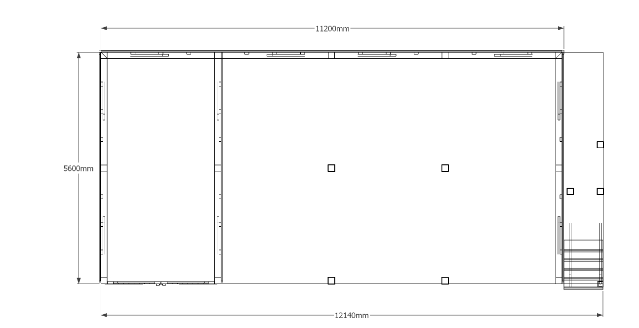
This two storey oak framed garage has four bays, one enclosed and three open. The enclosed bay is accessed via a set of garage doors to the front of the building.The first floor is accessed via an external oak staircase on the right hand side and a half glazed door. There is also a two pane window on the left hand side of the first floor.
Dimensions
| G/F Area (sq m) | 62.72 |
| F/F Area (sq m) | 49.28 |
| Total Area (sq m) | 112 |
| Length (m) | 12.2 |
| Depth (m) | 5.6 |
| Ridge Height (m) | 5.3 |
| Roof Pitch (deg) | 45 |
| Number of Bays | 4 |
| Location | Essex |
| Ridge Height (m) | Two Storey |



