Back to Two Bay Oak Garages
Two Bay Oak Garages - WS00178
This is a building we have previously constructed which you may want to use as a starting point for your design. All our buildings are designed and manufactured to your individual specifications.
Details
This oak framed garage has two open bays and is left open to the right hand side. On the left side there is an open logstore.
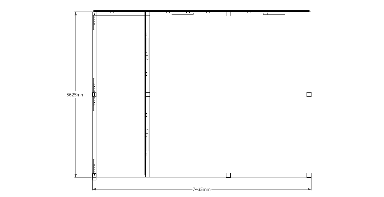
Dimensions
| G/F Area (sq m) | 41.7 |
| Total Area (sq m) | 41.7 |
| Length (m) | 7.42 |
| Depth (m) | 5.62 |
| Ridge Height (m) | 4.4 |
| Roof Pitch (deg) | 35 |
| Number of Bays | 2 |
| Location | Buckinghamshire |



