Back to Four Bays And Upwards with Upper Floors
Four Bays And Upwards with Upper Floors - WS00177
This is a building we have previously constructed which you may want to use as a starting point for your design. All our buildings are designed and manufactured to your individual specifications.
Details
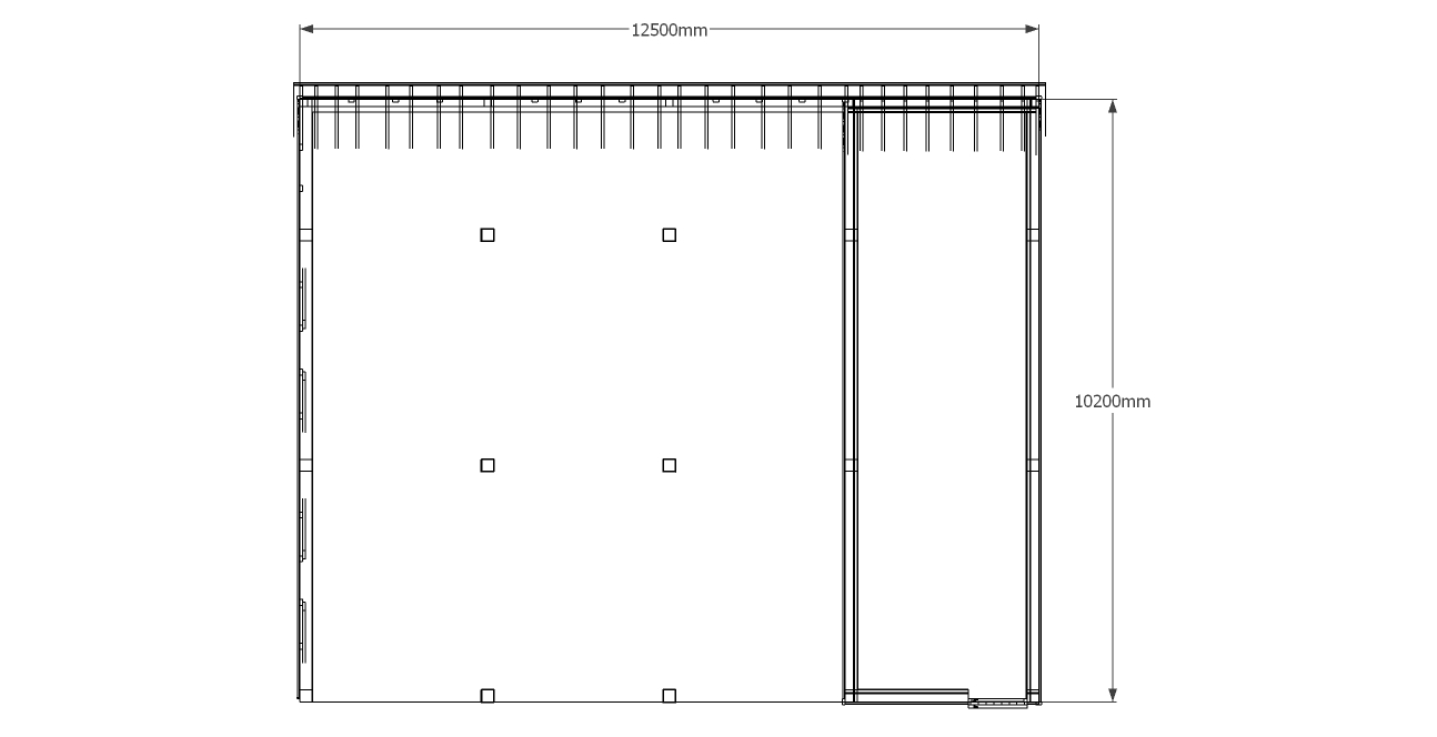
This oak framed four bay garage has three open bays and one enclosed bay. The enclosed bay is accessed via a single door to the front and is designed for storage. The first floor is accessed via a hatch in the enclosed bay and has four dormers to the front, each with a two pane window. There is also an enclosed store to the rear.
Dimensions
| G/F Area (sq m) | 127.5 |
| F/F Area (sq m) | 75 |
| Total Area (sq m) | 202.5 |
| Length (m) | 12.5 |
| Depth (m) | 10.2 |
| Ridge Height (m) | 5.9 |
| Roof Pitch (deg) | 40 |
| Number of Bays | 4 |
| Location | West Sussex |



