Back to Two Bay Oak Garages
Two Bay Oak Garages - WS00176
This is a building we have previously constructed which you may want to use as a starting point for your design. All our buildings are designed and manufactured to your individual specifications.
Details
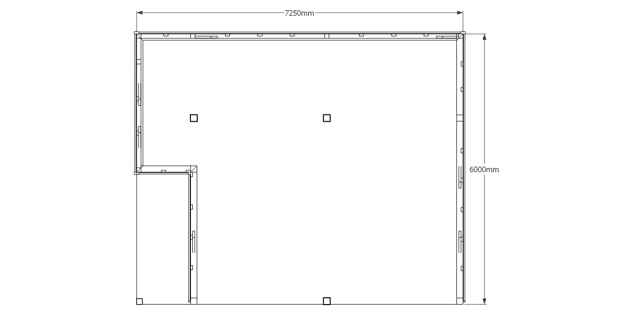
This oak framed garage has two open bays. There is also a logstore to the left side which is enclosed to the rear and open to the front.
Dimensions
| G/F Area (sq m) | 43.5 |
| Total Area (sq m) | 43.5 |
| Length (m) | 7.25 |
| Depth (m) | 6 |
| Ridge Height (m) | 4.2 |
| Roof Pitch (deg) | 40 |
| Number of Bays | 2 |
| Location | East Sussex |



