Back to Four Bays And Upwards with Upper Floors
Four Bays And Upwards with Upper Floors - WS00175
This is a building we have previously constructed which you may want to use as a starting point for your design. All our buildings are designed and manufactured to your individual specifications.
Details
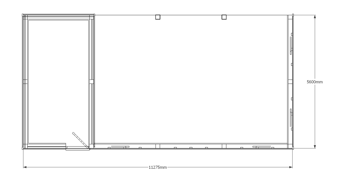
This oak framed building uses a sling brace frame in order to raise the eaves height.The building is formed of four bays, three open and one enclosed. The enclosed bay is accessed via a single door to the front and a mullion window. The three open bays are enclosed to the front and open to the rear, and each bay has a two pane window on the first floor. There are four full length garden room windows on the first floor to the left hand side, and trimmings for four rooflights.
Dimensions
| G/F Area (sq m) | 63.14 |
| F/F Area (sq m) | 40.59 |
| Total Area (sq m) | 103.73 |
| Length (m) | 11.275 |
| Depth (m) | 5.6 |
| Ridge Height (m) | 5.9 |
| Roof Pitch (deg) | 40 |
| Number of Bays | 4 |
| Location | Kent |
| Ridge Height (m) | Sling Brace |





