Back to Two Bay Oak Garages
Two Bay Oak Garages - WS00174
This is a building we have previously constructed which you may want to use as a starting point for your design. All our buildings are designed and manufactured to your individual specifications.
Details
This oak framed garage has two bays, one open and one enclosed. The enclosed bay is accessed via a set of garage doors to the front. There is also an open logstore to the left side.
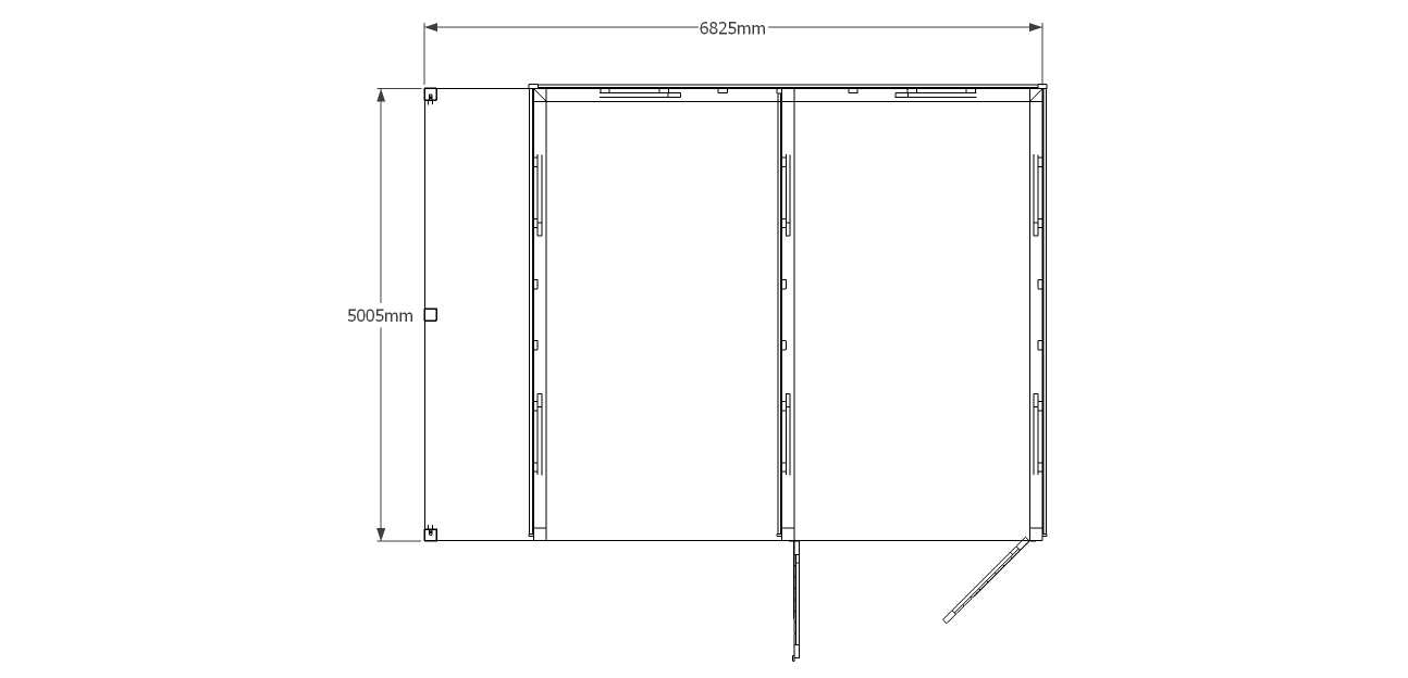
Dimensions
| G/F Area (sq m) | 34.1 |
| Total Area (sq m) | 34.1 |
| Length (m) | 6.82 |
| Depth (m) | 5 |
| Ridge Height (m) | 4.7 |
| Roof Pitch (deg) | 40 |
| Number of Bays | 2 |
| Location | West Sussex |



