Back to Four Bays And Upwards with Upper Floors
Four Bays And Upwards with Upper Floors - WS00171
This is a building we have previously constructed which you may want to use as a starting point for your design. All our buildings are designed and manufactured to your individual specifications.
Details
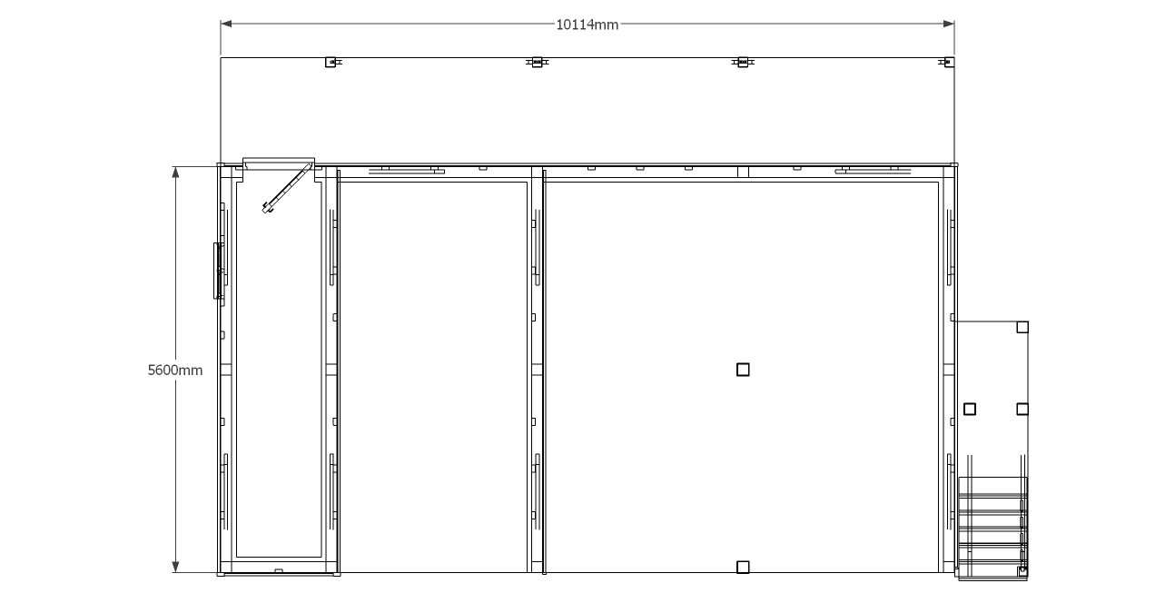
This oak framed two storey garage has three open bays and one enclosed bay, with an open logstore to the rear. The enclosed bay is accessed via a single door to the rear. There is an external oak staircase on the right hand side and the first floor is accessed by a half glazed door. There are two dormers to the front, each with a two pane window.
Dimensions
| G/F Area (sq m) | 56.64 |
| F/F Area (sq m) | 36.41 |
| Total Area (sq m) | 93.05 |
| Length (m) | 11.114 |
| Depth (m) | 5.6 |
| Ridge Height (m) | 5.3 |
| Roof Pitch (deg) | 45 |
| Number of Bays | 4 |
| Location | Devon |
| Ridge Height (m) | Two Storey |



