Back to Two Bay Oak Garages with Upper Floors
Two Bay Oak Garages with Upper Floors - WS00169
This is a building we have previously constructed which you may want to use as a starting point for your design. All our buildings are designed and manufactured to your individual specifications.
Details
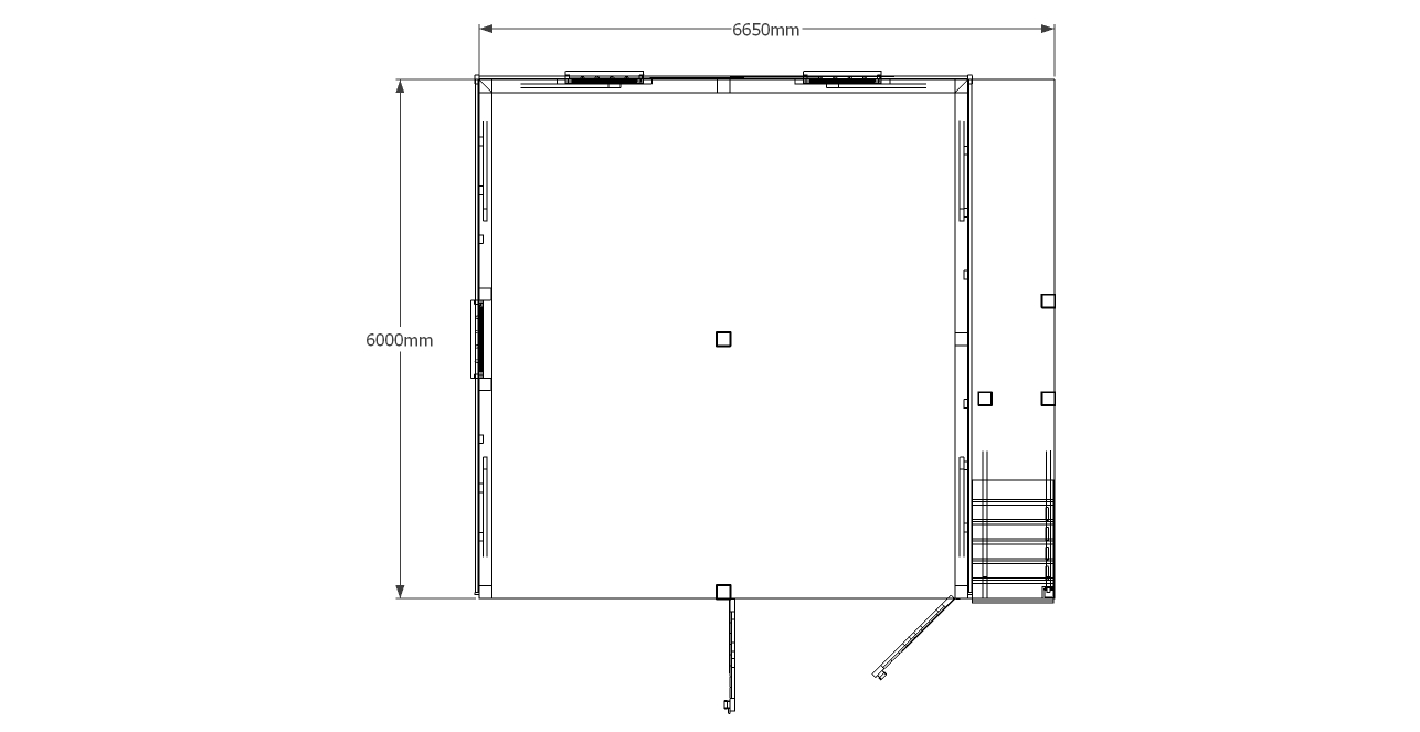
This is a two bay oak framed garage with room above. The ground floor has 2 garage bays, one open fronted and the other enclosed by a partition and a pair of garage doors. There are 3 mullion windows in the garage areas. There is an external oak staircase leading to a half glazed single door which accesses the first floor. There are 4 dormer windows suitable for two pane casement windows and a 3 pane escape casement window in the gable end.
Dimensions
| G/F Area (sq m) | 33.9 |
| F/F Area (sq m) | 22.6 |
| Total Area (sq m) | 56.5 |
| Length (m) | 6.65 |
| Depth (m) | 6 |
| Ridge Height (m) | 6 |
| Roof Pitch (deg) | 50 |
| Number of Bays | 2 |
| Location | Hampshire |



