Back to Three Bay Oak Garages with Upper Floors
Three Bay Oak Garages with Upper Floors - WS00168
This is a building we have previously constructed which you may want to use as a starting point for your design. All our buildings are designed and manufactured to your individual specifications.
Details
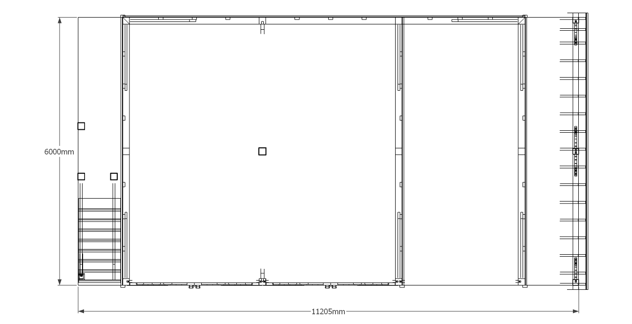
This oak framed two storey garage has two enclosed bays and one open bay. There is an open store to the right hand side. The first floor is accessed via an external oak staircase and there is a half glazed door, with a small porch to cover the staircase.There is trimming for one rooflight on the right hand side.
Dimensions
| G/F Area (sq m) | 54 |
| F/F Area (sq m) | 36 |
| Total Area (sq m) | 90 |
| Length (m) | 11.2 |
| Depth (m) | 6 |
| Ridge Height (m) | 5.5 |
| Roof Pitch (deg) | 45 |
| Number of Bays | 3 |
| Location | Kent |
| Ridge Height (m) | Two Storey |




