Back to Two Bay Oak Garages with Upper Floors
Two Bay Oak Garages with Upper Floors - WS00167
This is a building we have previously constructed which you may want to use as a starting point for your design. All our buildings are designed and manufactured to your individual specifications.
Details
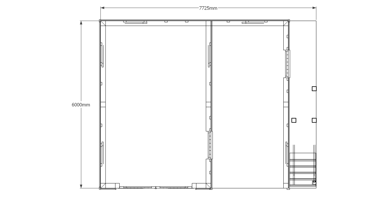
This two storey oak framed garage has two bays, one is enclosed and one is open. The enclosed bay is accessed via standard garage doors to the front and the open bay has a single door to the right hand side. The first floor is accessed via an external oak staircase and has a half glazed door. There are also trimmings for two rooflights.
Dimensions
| G/F Area (sq m) | 40.35 |
| F/F Area (sq m) | 26.9 |
| Total Area (sq m) | 67.25 |
| Length (m) | 7.925 |
| Depth (m) | 6 |
| Ridge Height (m) | 5.5 |
| Roof Pitch (deg) | 45 |
| Number of Bays | 2 |
| Location | Surrey |
| Ridge Height (m) | Two Storey |



