Back to Oak Framed Complexes
Oak Framed Complexes - WS00164
This is a building we have previously constructed which you may want to use as a starting point for your design. All our buildings are designed and manufactured to your individual specifications.
Details
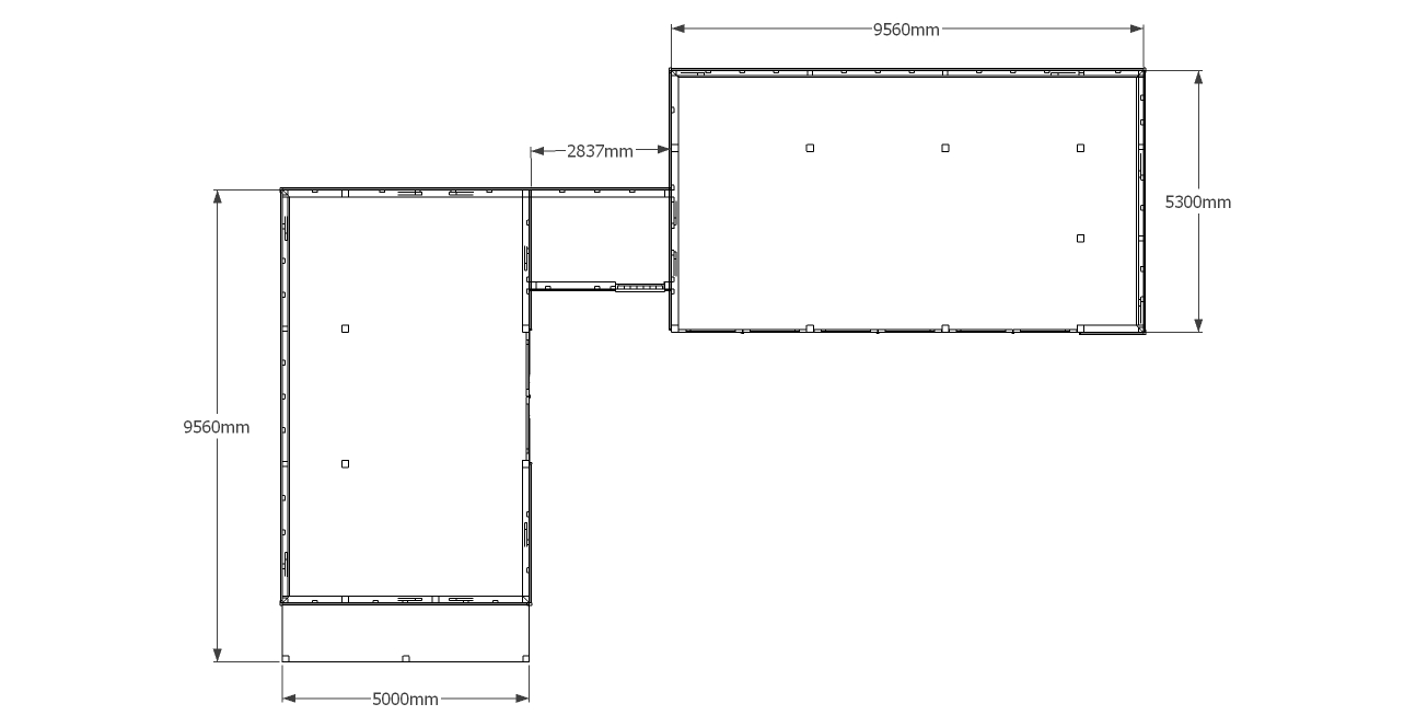
This oak framed complex has a three bay enclosed garage, a link building and another three bay enclosed garage. The first garage has one set of garage doors to the front and a mullion window. There is an enclosed store to the rear and also an open store to the left hand side. The link building is accessed via a single door to the front and also has a mullion window. The second three bay garage has three sets of garage doors to the front and and enclosed store to the right hand side.
Dimensions
| G/F Area (sq m) | 104.23 |
| Total Area (sq m) | 104.23 |
| Length (m) | 17.44 |
| Depth (m) | 11.98 |
| Ridge Height (m) | 4 |
| Roof Pitch (deg) | 40 |
| Number of Bays | 7 |
| Location | Cornwall |



