Oak Framed Complexes - WS00163
This is a building we have previously constructed which you may want to use as a starting point for your design. All our buildings are designed and manufactured to your individual specifications.
Details
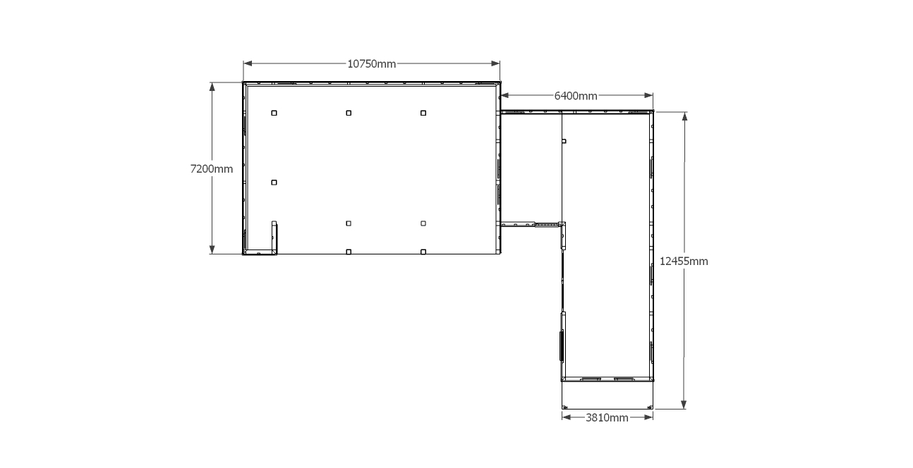
This oak framed complex has a three bay open garage, a link building, and a one bay garage with a store. The three bay garage is open to the front and has an enclosed store to the rear and the left side. The small link building is accessed via a single door to the front and also has a mullion window. The one bay garage has an enclosed bay next to the link building which is designed for storage, and the garage is accessed via a set of garage doors to the front and has a mullion window. There is also an open logstore to the right hand side.
Dimensions
| G/F Area (sq m) | 137.42 |
| Total Area (sq m) | 137.42 |
| Length (m) | 17.15 |
| Depth (m) | 13.7 |
| Ridge Height (m) | 5.5 |
| Roof Pitch (deg) | 45 |
| Number of Bays | 7 |
| Location | Buckinghamshire |



