Back to Three Bay Oak Garages
Three Bay Oak Garages - WS00154
This is a building we have previously constructed which you may want to use as a starting point for your design. All our buildings are designed and manufactured to your individual specifications.
Details
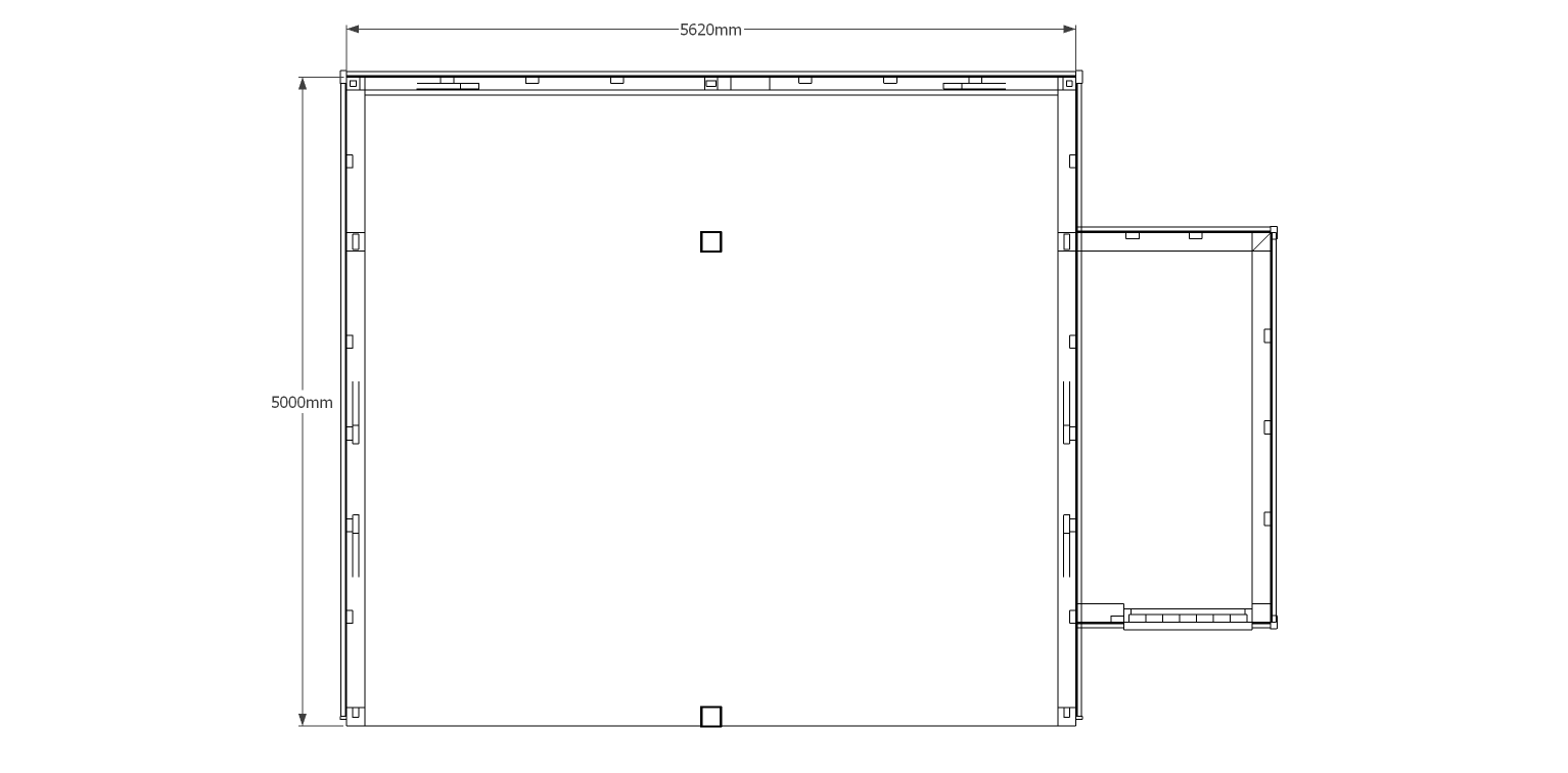
This oak framed garage has two open garage bays and an enclosed logstore to the rear. There is a also a smaller single bay store attached to the right and accessed via a single door to the front.
Dimensions
| G/F Area (sq m) | 32.6 |
| Total Area (sq m) | 32.6 |
| Length (m) | 7.12 |
| Depth (m) | 5 |
| Ridge Height (m) | 4 |
| Roof Pitch (deg) | 40 |
| Number of Bays | 3 |
| Location | Berkshire |




