Back to Four Bays and Upwards
Four Bays and Upwards - WS00150
This is a building we have previously constructed which you may want to use as a starting point for your design. All our buildings are designed and manufactured to your individual specifications.
Details
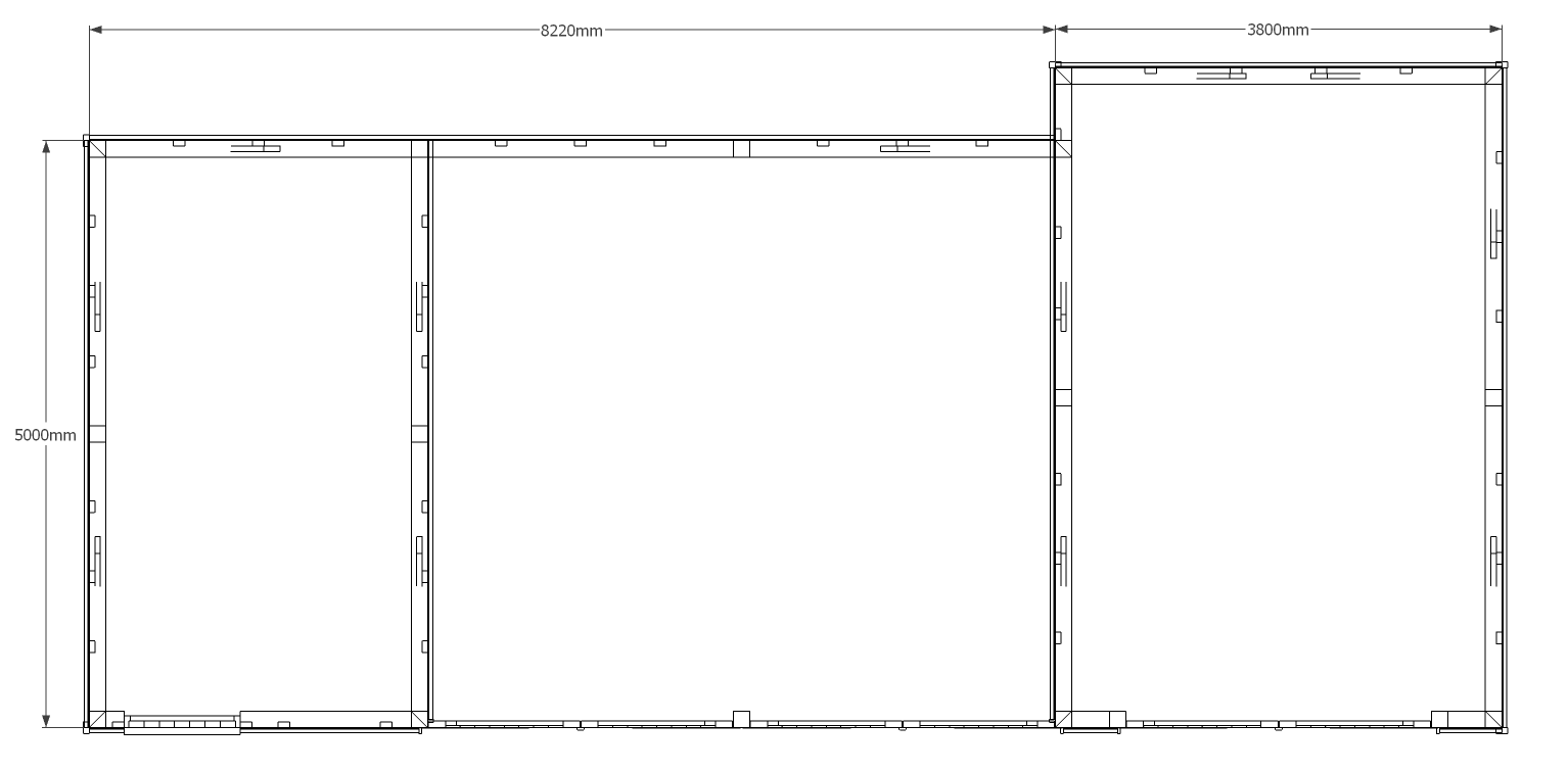
This oak framed garage is made up of two different frames. One is a three bay garage with one bay to be used as a store or workshop, accessed by a single door to the front and the other garage bays accessed by a set of garage doors to the front of the bay. The other frame is a two bay garage with the garage doors on the left hand side, with a gable end.
Dimensions
| G/F Area (sq m) | 62.5 |
| Total Area (sq m) | 62.5 |
| Length (m) | 12.02 |
| Depth (m) | 5.62 |
| Ridge Height (m) | 4.5 |
| Roof Pitch (deg) | 40 |
| Number of Bays | 4 |
| Location | Essex |




